
1 home available
12012 S Michigan Avenue, Chicago, IL 60628
NEW 4 hrs ago
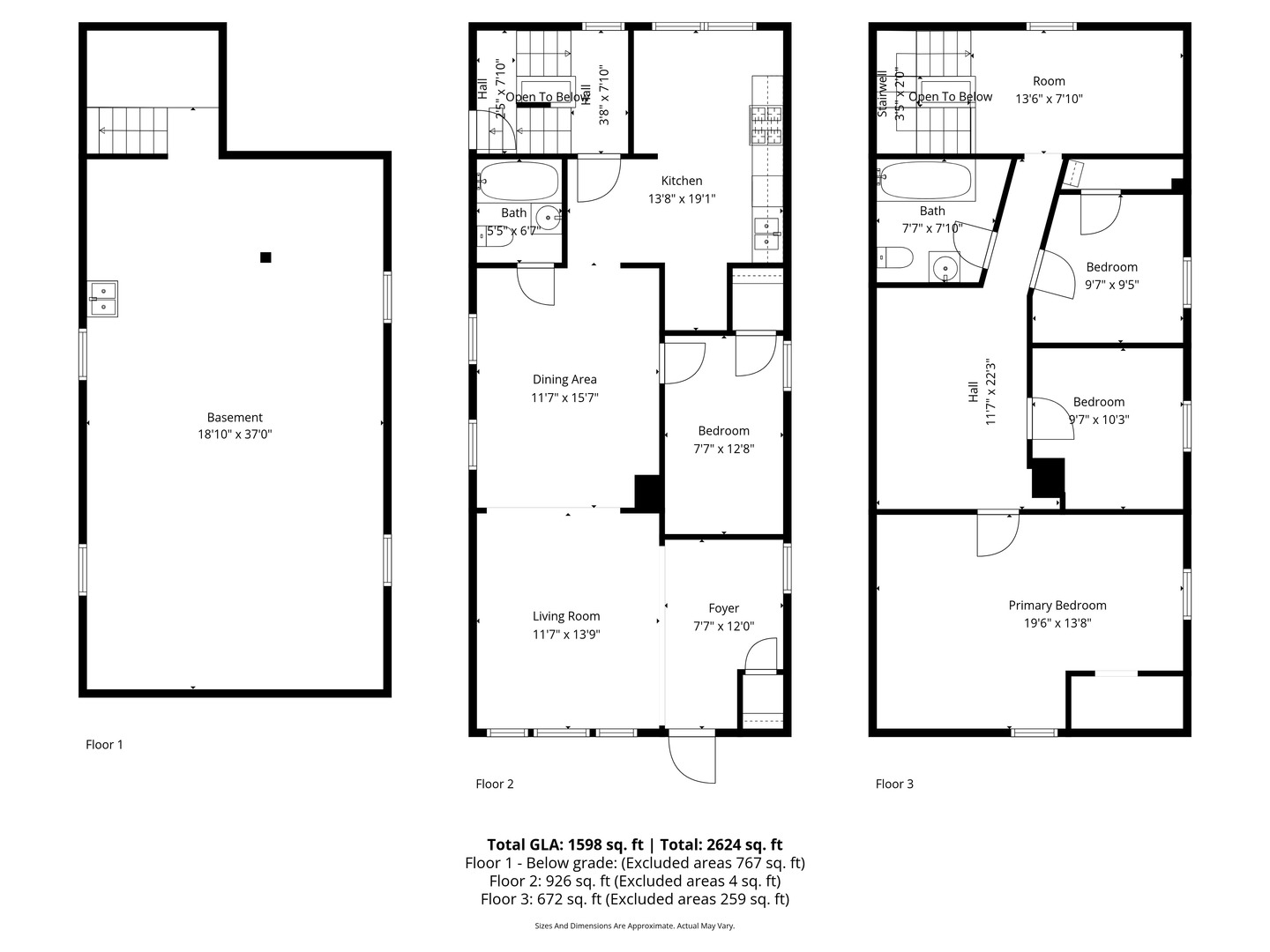
$189,000
4beds
2bath
2,142sqft
–acres
House for Sale
12012 S Michigan Avenue, Chicago, IL 60628
Listing by: Keller Williams Preferred Rlty
1 - 1 of 1 results

6655 Main St., Downers Grove, IL 60516
© 2025 Mainstreet REALTORS® All Rights Reserved.
Display of MLS Data is usually deemed reliable but is NOT guaranteed accurate by the MLS. Buyers are responsible for verifying the accuracy of all information and should investigate the data themselves or retain appropriate professionals.





