
- Buy
- Rent
- Commercial
- Find a REALTOR®

10 Old Hart Road, Barrington Hills, IL 60010



























































































































IL/Lake/Barrington Hills/60010/10 Old Hart Road, Barrington Hills, IL 6001010 Old Hart Road, Barrington Hills, IL 60010
10 Old Hart Road, Barrington Hills, IL 60010
House for Sale by Kathy Svendson, Baird & Warner.
- Overview
- Details
- Open Houses
- More
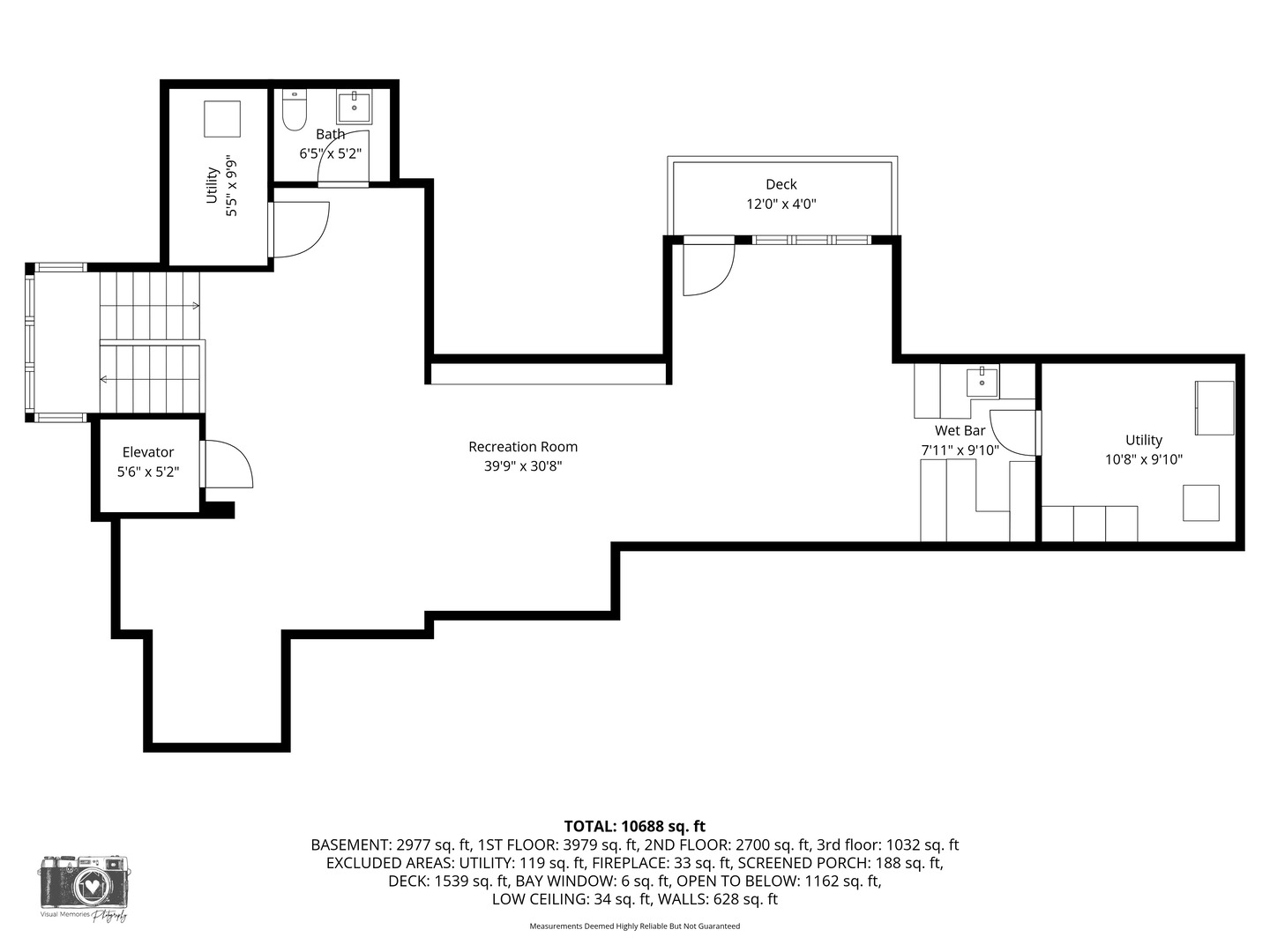
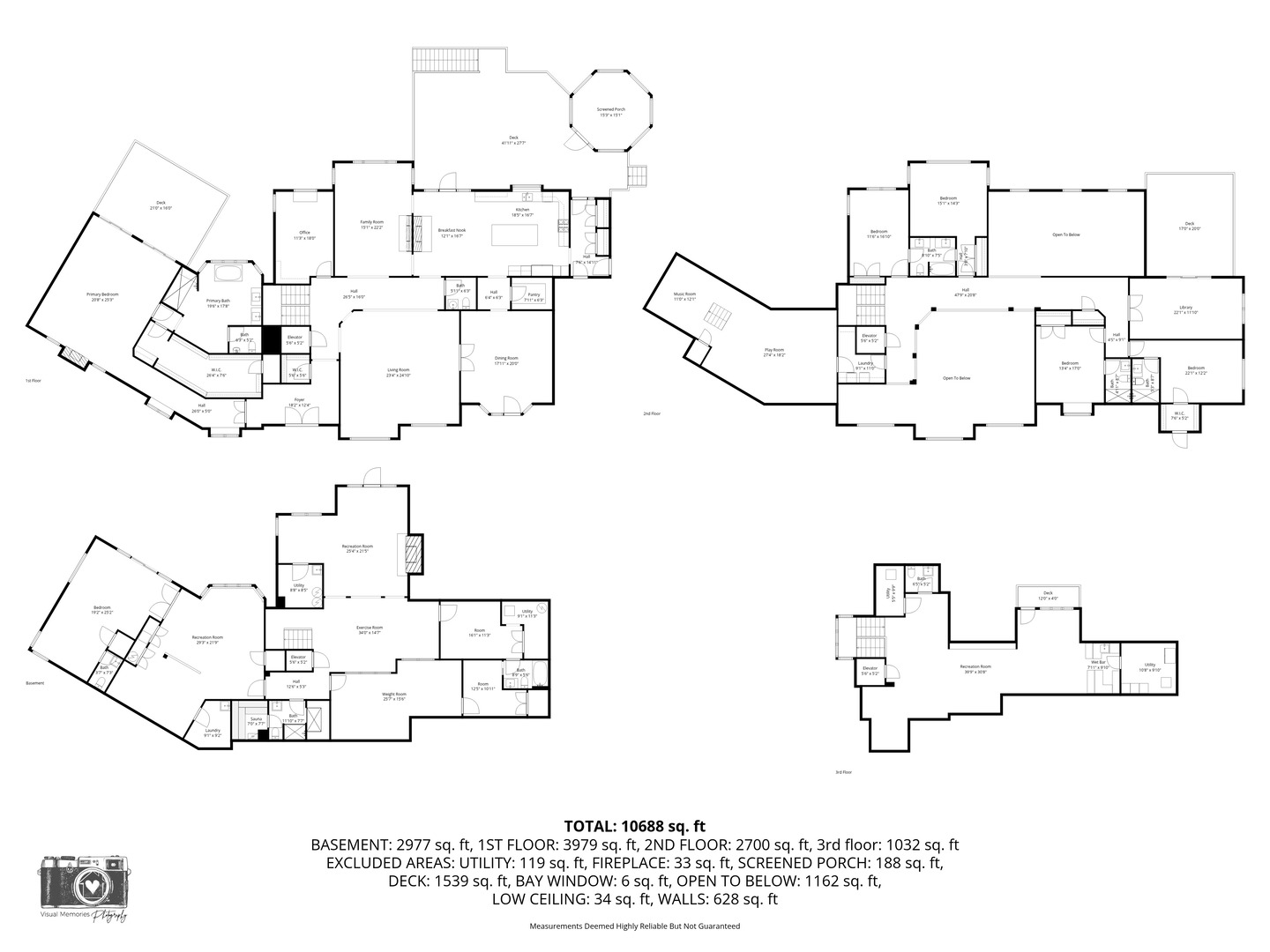
This extraordinary resort-style estate is set behind private gates on five breathtaking acres in Barrington Hills. As you arrive through dual gated entrances and follow the circular paver driveway, the estate unfolds with a sense of privacy and grandeur. The grounds are truly exceptional, centered around a picturesque stocked lake with a private sandy beach, a lakeside firepit with custom stone seating, and an in-ground pool surrounded by expansive paver patios. Designed for both entertaining and relaxation, outdoor living spaces include a striking two-sided stone fireplace beneath a pergola, a screened gazebo, and elevated gathering areas overlooking rolling hills and a beautifully maintained riding arena. Lush gardens, meandering walkways, and thoughtfully designed landscaping create a setting that feels both peaceful and impressive. A comprehensive 2021-2022 renovation transformed the home, elevating it with all-new cabinetry, new flooring throughout, 21 new windows, fresh drywall, updated electrical, new copper plumbing, and a new roof. The exterior has been professionally inspected and enhanced, while the interior has been freshly painted, creating a clean and refined aesthetic throughout. The estate is fully equipped for equestrian living, offering two fenced pastures with an automatic watering system, a run-in shed, an outdoor horse wash stall, and multiple fenced access points. Four multi-zone HVAC systems, three water heaters, whole-house water filtration, and a newly installed security system ensure effortless living at scale. The location offers an ideal balance between tranquil natural surroundings and everyday convenience, with nearby nature preserves and riding trails, as well as close proximity to Barrington Schools, village shops, the Metra station, and O'Hare International Airport. Ideally positioned near a private Country Club, this estate offers a lifestyle of privacy, recreation, and convenience in one exceptional offering. Welcome home!



