
- Buy
- Rent
- Commercial
- Find a REALTOR®

110 Newburgh Lane, Algonquin, IL 60102










IL/Kane/Algonquin/60102/110 Newburgh Lane, Algonquin, IL 60102110 Newburgh Lane, Algonquin, IL 60102
110 Newburgh Lane, Algonquin, IL 60102
House for Sale by Bill Flemming, HomeSmart Connect LLC.
- Overview
- Details
- Open Houses
- More
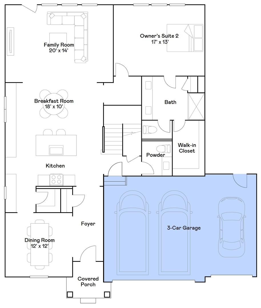
AVAILABLE NOW! QUICK MOVE-IN READY! SPECIAL FINANCING AVAILABLE! Homesite# 0043. Step into the Sequoia plan-a thoughtfully designed 5-bedroom, 3.5-bath home that offers exceptional comfort, flexibility, and modern convenience for today's families. Just off the foyer, a formal dining room sets the stage for memorable gatherings or everyday meals with ease and elegance. Beyond the entry, the heart of the home unfolds in a spacious open-concept layout where the kitchen, breakfast room, and family room connect seamlessly-perfect for casual living and entertaining alike. The kitchen features a large center island, sleek quartz countertops, generous cabinetry, and stainless steel appliances that bring both function and contemporary style to the space. Throughout the first floor, luxury vinyl plank flooring and energy-efficient LED lighting enhance the home's warm, modern feel. Upstairs, the primary owner's suite offers a peaceful retreat with a spacious walk-in closet and a spa-inspired en-suite bathroom. Three additional bedrooms and a shared full bathroom provide ample space for family or guests. A convenient second-floor laundry room adds everyday practicality right where it's needed most. The second owner's suite is located on the first floor, offering a private and comfortable space for guests or extended stays. This suite features its own walk-in closet and private en-suite bath, making it a perfect main-level retreat. Additional highlights include a first-floor powder room and a three-car garage. Designed to adapt to your lifestyle, the Sequoia plan delivers smart, spacious living with comfort and style at every turn. Exterior will be Indigo color vinyl siding with Old World Ledge - Banff color stone. (pic for reference ONLY) *Photos are not this actual home* Nestled in a beautifully planned community, Algonquin Meadows offers a variety of thoughtfully designed single-family homes, traditional townhomes, and urban townhomes - all set among serene green spaces and tranquil ponds. Winding streets, cul-de-sacs, and walking paths create a peaceful neighborhood atmosphere that feels private, yet perfectly connected. Just minutes away, charming downtown Algonquin awaits with scenic riverfront parks, fishing spots, and a vibrant local culture. You'll enjoy convenient access to premier destinations like Northwestern Medicine, top-rated golf courses, and fitness centers such as Lifetime Fitness. Located right off the Randall Road corridor, you're surrounded by some of the area's best shopping and dining - including Trader Joe's, Cooper's Hawk, Target, Costco, and Algonquin Commons. Whether you're looking for daily essentials or a relaxing night out, everything you need is within easy reach. Come home to Algonquin Meadows - where natural beauty, community charm, and modern convenience meet.