
- Buy
- Rent
- Commercial
- Find a REALTOR®

1171 Waterford Street, Algonquin, IL 60102










IL/Kane/Algonquin/60102/1171 Waterford Street, Algonquin, IL 601021171 Waterford Street, Algonquin, IL 60102
1171 Waterford Street, Algonquin, IL 60102
House for Sale by Bill Flemming, HomeSmart Connect LLC.
- Overview
- Details
- Open Houses
- More
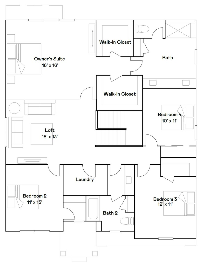
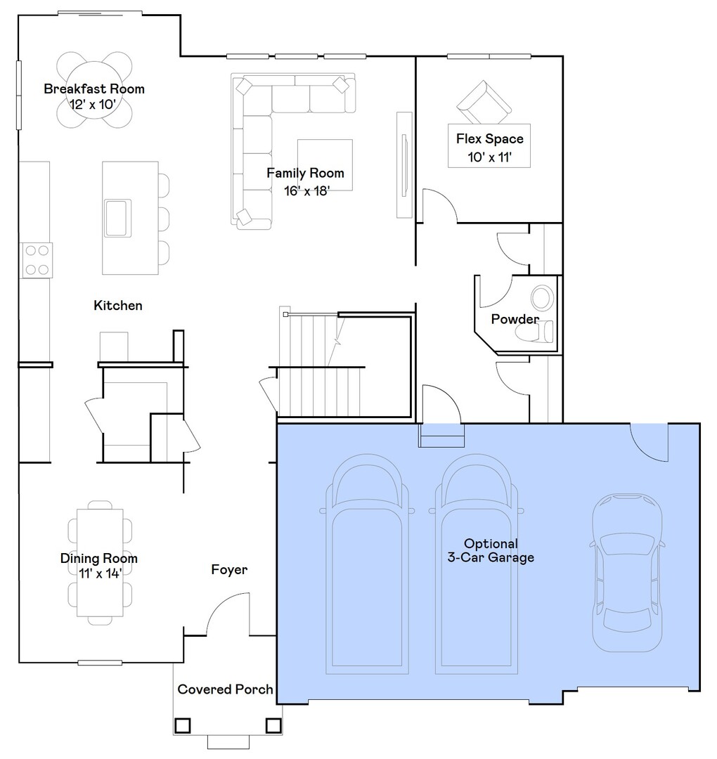
SPECIAL FINANCING OFFERS AVAILABLE! READY FOR FEBRUARY DELIVERY! Homesite #0017. Welcome to the Santa Rosa plan -a stylish two story layout offers four spacious bedrooms, two full bathrooms, and a convenient powder room on the main floor. The heart of the home centers around an open concept flow: the kitchen, breakfast area, and family room merge seamlessly, while a formal dining area off the foyer provides an inviting space for meals and gatherings. At the back of the first floor, you'll find a versatile flex room, ideal for a home office, playroom, or quiet retreat-perfectly tailored to your lifestyle. Upstairs, a charming loft space graces the top of the stairs, offering additional living flexibility. The luxurious owner's suite features dual walk in closets and a spa inspired en suite bathroom. Three more bedrooms share access to a well-appointed full bathroom. The second-floor laundry adds ease to daily routines. A three car garage and thoughtful interior design details enhance both function and style throughout-making the Santa Rosa a smart and livable choice for modern family life. Exterior will be Bone color siding with Manor House color brick. (pic for reference ONLY). *Photos are not this actual home* Nestled in a beautifully planned community, Algonquin Meadows offers a variety of thoughtfully designed single-family homes, traditional townhomes, and urban townhomes - all set among serene green spaces and tranquil ponds. Winding streets, cul-de-sacs, and walking paths create a peaceful neighborhood atmosphere that feels private, yet perfectly connected. Just minutes away, charming downtown Algonquin awaits with scenic riverfront parks, fishing spots, and a vibrant local culture. You'll enjoy convenient access to premier destinations like Northwestern Medicine, top-rated golf courses, and fitness centers such as Lifetime Fitness. Located right off the Randall Road corridor, you're surrounded by some of the area's best shopping and dining - including Trader Joe's, Cooper's Hawk, Target, Costco, and Algonquin Commons. Whether you're looking for daily essentials or a relaxing night out, everything you need is within easy reach. Come home to Algonquin Meadows - where natural beauty, community charm, and modern convenience meet.