
1 home available
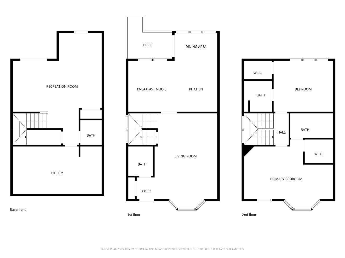
1326 Windsor Court, Geneva, IL 60134
NEW 2 hrs ago

$320,000
2beds
2 full, 2 halfbath
1,447sqft
–acres
Townhouse for Sale
1326 Windsor Court, Geneva, IL 60134
Listing by: Berkshire Hathaway HomeServices Starck Real Estate
1 - 1 of 1 results

6655 Main St., Downers Grove, IL 60516
© 2026 Mainstreet REALTORS® All Rights Reserved.
Display of MLS Data is usually deemed reliable but is NOT guaranteed accurate by the MLS. Buyers are responsible for verifying the accuracy of all information and should investigate the data themselves or retain appropriate professionals.
































