
- Buy
- Rent
- Commercial
- Find a REALTOR®

14 Oxford Court, Algonquin, IL 60102










IL/McHenry/Algonquin/60102/14 Oxford Court, Algonquin, IL 6010214 Oxford Court, Algonquin, IL 60102
14 Oxford Court, Algonquin, IL 60102
Townhouse for Sale by Abby Powell, Baird & Warner.
- Overview
- Details
- Open Houses
- More
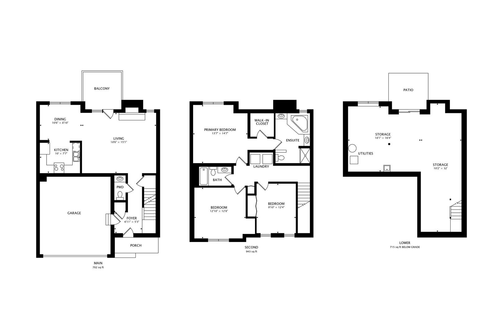
Welcome to easy living at Oxford Court in Algonquin! This spacious three-level townhome offers over 2,000 square feet of comfort, living space, convenience, and style-freshly painted and ready for you to make it your own. Step inside from your attached two-car garage to a warm and inviting main level featuring cozy carpeting and a beautiful stone fireplace-the perfect backdrop for movie nights, book club gatherings, or cheering on your favorite team. Love fresh air? Step right out to your private balcony, ideal for grilling or unwinding after a long day. The kitchen is designed for both function and style, complete with gorgeous cabinets, solid-surface countertops, and full amenities including a refrigerator, stove, dishwasher, and microwave. It opens seamlessly into your formal dining area, perfect for dinner parties or casual weeknight meals. Ample sunlight for your furry family members to enjoy. Upstairs, you'll find a thoughtfully designed second floor featuring three generously sized bedrooms, including a spacious primary suite with a double vanity and relaxing soaking tub. The second-floor laundry room adds a layer of convenience that makes everyday life a little easier. Each bedroom offers plush carpeting, ample closet space, and flexibility to create the ideal home office, guest room, your choice! The lower-level walkout basement adds even more possibilities-a great spot for the home gym you've been dreaming of...think... designated Peloton space, or craft studio, gaming area, or even a podcast setup. You'll also have access to a second outdoor space right from this level, giving you another way to enjoy the outdoors. The perfect spot for your little home garden, basil plants, tomato's and succulents. Located just minutes from downtown Algonquin, you'll have easy access to local favorites like Port Edward, Whiskey & Wine, Riverboat Ice Cream Co., and Cucina Bella. Everyday conveniences are nearby too-Starbucks, Chubby's Gyros, Jewel-Osco, and Subway are just over a mile away. Nearby parks include Holder Memorial Park, Presidential Park and Riverfront Park. Come experience the comfort, space, and unbeatable location of Oxford Court living-it's everything you've been looking for in your next home! This Home is being sold as-is and is an Estate Sale. Please see disclosures.