
- Buy
- Rent
- Commercial
- Find a REALTOR®

14829 S Henebry Lane, Plainfield, IL 60544










IL/Will/Plainfield/60544/14829 S Henebry Lane, Plainfield, IL 6054414829 S Henebry Lane, Plainfield, IL 60544
14829 S Henebry Lane, Plainfield, IL 60544
House for Sale by Bill Flemming, HomeSmart Connect LLC.
- Overview
- Details
- Open Houses
- More
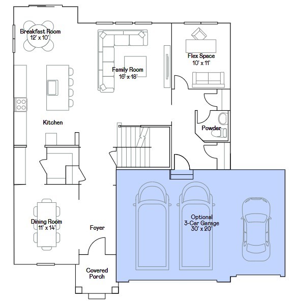
SPECIAL FINANCING OFFERS AVAILABLE! READY FOR NOVEMBER DELIVERY! Homesite #0148 Welcome to the Santa Rosa plan -a stylish two story layout offers four spacious bedrooms, two full bathrooms, and a convenient powder room on the main floor. The heart of the home centers around an open concept flow: the kitchen, breakfast area, and family room merge seamlessly, while a formal dining area off the foyer provides an inviting space for meals and gatherings. At the back of the first floor, you'll find a versatile flex room, ideal for a home office, playroom, or quiet retreat-perfectly tailored to your lifestyle. Upstairs, a charming loft space graces the top of the stairs, offering additional living flexibility. The luxurious owner's suite features dual walk in closets and a spa inspired en suite bathroom. Three more bedrooms share access to a well-appointed full bathroom. The second-floor laundry adds ease to daily routines. A three car garage and thoughtful interior design details enhance both function and style throughout-making the Santa Rosa a smart and livable choice for modern family life. Exterior will be Mocha color siding with Weather Ledge - Ashen color stone. (pic for reference ONLY) *Photos are not this actual home* Experience the best of suburban living at Keller Farm, a thoughtfully planned community coming soon to Plainfield, Illinois. This exciting new neighborhood will feature exceptional onsite amenities, including a nearly 30-acre park, an extensive trail system, and almost five acres of additional parkland-perfect for outdoor adventures, family fun, and everyday relaxation. Located in the thriving city of Plainfield, Keller Farm offers residents the perfect blend of small-town charm and modern convenience. Downtown Plainfield is a vibrant hub of activity, with boutique shops, local restaurants, big box retailers, and major supermarkets all close at hand. Whether you're running errands or enjoying a night out, everything you need is just minutes away. Plainfield is also known for its excellent recreation centers, beautiful parks, and year-round community events. From the festive St. Patrick's Day parade to seasonal artisan markets and the lively Plainfield Fest each summer, there's always something happening to bring neighbors together. At Keller Farm, you'll find more than just a home-you'll find a lifestyle filled with connection, convenience, and community.