
- Buy
- Rent
- Commercial
- Find a REALTOR®

14942 S Darr Drive, Plainfield, IL 60544











































IL/Will/Plainfield/60544/14942 S Darr Drive, Plainfield, IL 6054414942 S Darr Drive, Plainfield, IL 60544
14942 S Darr Drive, Plainfield, IL 60544
House for Sale by Bill Flemming, HomeSmart Connect LLC.
- Overview
- Details
- Open Houses
- More
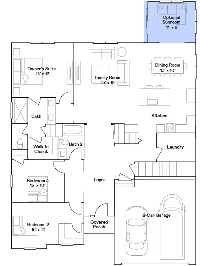
SPECIAL FINANCING OFFERS AVAILABLE! READY FOR FEBRUARY DELIVERY! Homesite #0117. Step into the Siena, a thoughtfully designed single-story home that blends comfort, efficiency, and modern style. This well-balanced layout features three bedrooms and two bathrooms within an open-concept design that creates a seamless flow between the family room, dining area, and kitchen-perfect for both everyday living and casual entertaining. At the heart of the home, the kitchen shines with a spacious island, Quartz countertops, stainless steel appliances, and generous cabinetry, offering both function and elegance. The private owner's suite is a peaceful retreat, complete with an expansive walk-in closet and a spa-like en-suite bathroom designed for relaxation. Two additional bedrooms are positioned near a shared hallway bath, offering flexibility for guests, family members, or a home office. The Siena also includes 9-foot ceilings, luxury vinyl plank flooring, plush carpeting, Deluxe shower upgrades, smart-height water-saving commodes, and many other premium features tailored to enrich your lifestyle. Delivering modern living in a streamlined, practical layout, the Siena is a versatile and stylish choice for a wide range of homeowners. Exterior will be Aspen White color siding with Brownstone color brick. (pic for reference ONLY) *Photos are not this actual home* Experience the best of suburban living at Keller Farm, a thoughtfully planned community coming soon to Plainfield, Illinois. Featuring the Andare Series of low-maintenance ranch homes, Keller Farm is designed for easy, modern living in a vibrant and connected setting. This exciting new neighborhood will offer exceptional onsite amenities, including a nearly 30-acre park, an extensive trail system, and almost five additional acres of parkland-ideal for outdoor adventures, family fun, and peaceful everyday moments. Situated in the thriving city of Plainfield, Keller Farm delivers the perfect balance of small-town charm and modern convenience. Just minutes from home, Downtown Plainfield offers a lively mix of boutique shops, local restaurants, big-box retailers, and major supermarkets-whether you're running errands or enjoying a night out, everything is within easy reach. Plainfield is also known for its excellent recreation centers, beautiful parks, and a calendar full of year-round community events. From the festive St. Patrick's Day Parade to seasonal artisan markets and the ever-popular Plainfield Fest, there's always something to bring neighbors together. At Keller Farm, you'll find more than just a home-you'll discover a lifestyle built on connection, convenience, and community.
