
- Buy
- Rent
- Commercial
- Find a REALTOR®

14955 S McCarthy Circle, Plainfield, IL 60544











































IL/Will/Plainfield/60544/14955 S McCarthy Circle, Plainfield, IL 6054414955 S McCarthy Circle, Plainfield, IL 60544
14955 S McCarthy Circle, Plainfield, IL 60544
Townhouse for Sale by Bill Flemming, HomeSmart Connect LLC.
- Overview
- Details
- Open Houses
- More
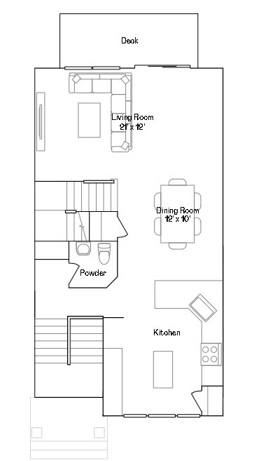
SPECIAL FINANCING AVAILABLE! AVAILABLE NOW! Homesite #1234 Welcome to the Chatham - a beautifully designed, three-story urban townhome where premium design and everyday ease converge harmoniously. This home offers three spacious bedrooms, two full bathrooms, and a convenient half bath. Luxury vinyl plank flooring spans the main level adding a warm and welcoming atmosphere throughout. The designer kitchen is the soul of the home, thoughtfully appointed with 42" cabinetry, elegant quartz countertops, a built-in pantry, and a jaw-dropping kitchen island. Upstairs, the primary suite is a serene sanctuary, featuring a spacious walk-in closet and a luxurious en-suite bathroom. Two additional bedrooms, a full bath, and a convenient second-floor laundry room complete the floor. Located on the lower level, the study offers endless possibilities and can be customized to suit your unique needs -limited only by your imagination. *Photos are not this actual home* Experience the best of suburban living at Keller Farm, a thoughtfully planned community coming soon to Plainfield, Illinois. This exciting new neighborhood will feature exceptional onsite amenities, including a nearly 30-acre park, an extensive trail system, and almost five acres of additional parkland-perfect for outdoor adventures, family fun, and everyday relaxation. Located in the thriving city of Plainfield, Keller Farm offers residents the perfect blend of small-town charm and modern convenience. Downtown Plainfield is a vibrant hub of activity, with boutique shops, local restaurants, big box retailers, and major supermarkets all close at hand. Whether you're running errands or enjoying a night out, everything you need is just minutes away. Plainfield is also known for its excellent recreation centers, beautiful parks, and year-round community events. From the festive St. Patrick's Day parade to seasonal artisan markets and the lively Plainfield Fest each summer, there's always something happening to bring neighbors together. At Keller Farm, you'll find more than just a home-you'll find a lifestyle filled with connection, convenience, and community.
