
- Buy
- Rent
- Commercial
- Find a REALTOR®

1502 Kinwood Road, South Elgin, IL 60177










IL/Kane/South Elgin/60177/1502 Kinwood Road, South Elgin, IL 601771502 Kinwood Road, South Elgin, IL 60177
1502 Kinwood Road, South Elgin, IL 60177
House for Sale by Bill Flemming, HomeSmart Connect LLC.
- Overview
- Details
- Open Houses
- More
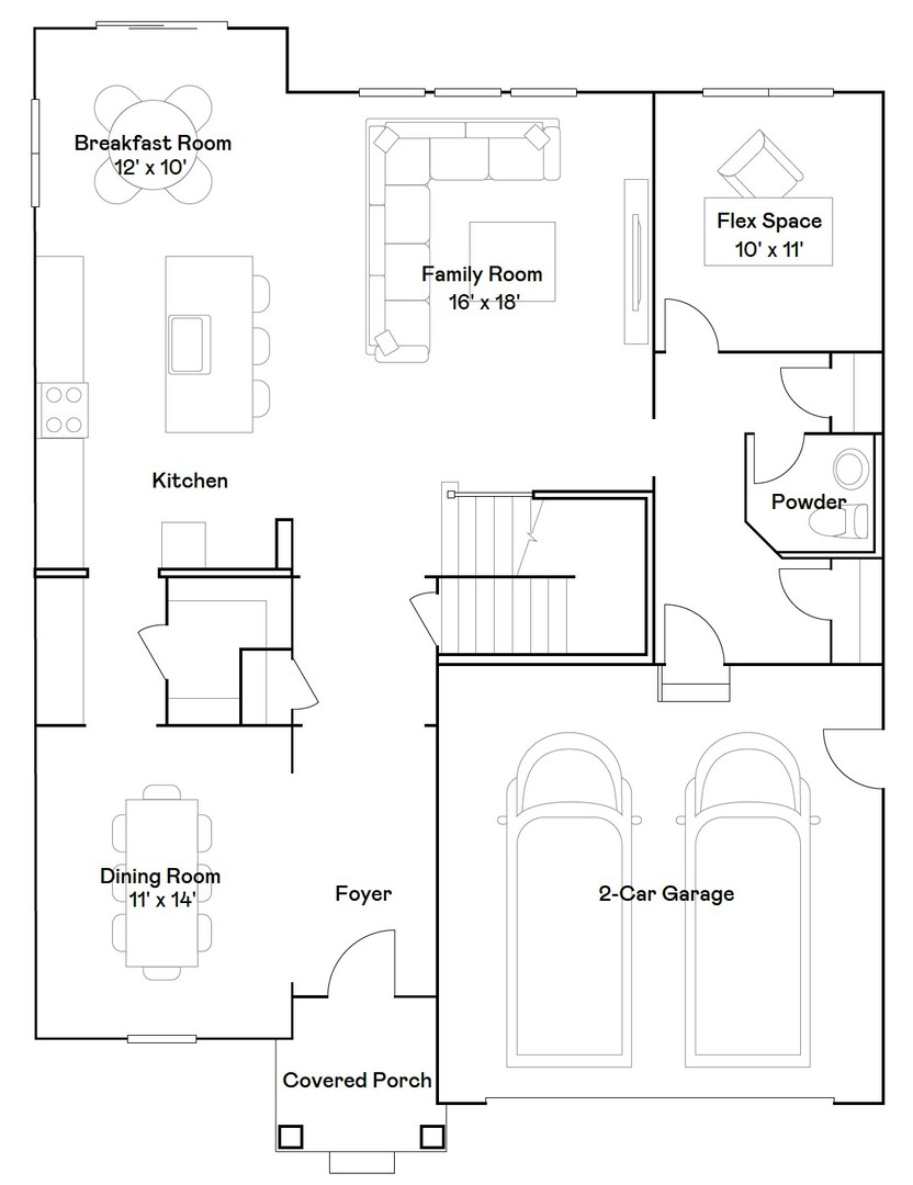
READY FOR APRIL DELIVERY! Homesite #0006. Welcome to the Santa Rosa plan -a stylish two story layout offers five spacious bedrooms, three full bathrooms, and a convenient powder room on the main floor. The heart of the home centers around an open concept flow: the kitchen, breakfast area, and family room merge seamlessly, while a formal dining area off the foyer provides an inviting space for meals and gatherings. At the back of the first floor, you'll find a versatile flex room, ideal for a home office, playroom, or quiet retreat-perfectly tailored to your lifestyle. Upstairs, a charming loft space graces the top of the stairs, offering additional living flexibility. The luxurious owner's suite features dual walk in closets and a spa inspired en suite bathroom. Three more bedrooms share access to a well-appointed full bathroom. The second-floor laundry adds ease to daily routines. A three car garage and thoughtful interior design details enhance both function and style throughout-making the Santa Rosa a smart and livable choice for modern family life. Exterior will be Aspen White vinyl sidings. *Photos are not this actual home* Ashbury is a welcoming community of new townhomes and single-family homes in South Elgin, IL, offering the perfect blend of comfort, convenience, and outdoor fun. Designed with families in mind, this community boasts fantastic onsite amenities and scenic multi-use trails that wind through natural surroundings. Just a short drive away, the South Elgin Commons offers diverse shopping, dining, and various entertainment. In addition downtown Elgin offers even more to explore. Situated along the Fox River, it features charming historic architecture and the popular Elgin Riverwalk-a local favorite for leisurely strolls and riverside views. Enjoy year-round entertainment with festivals, events, and exciting attractions like the Grand Victoria Casino. At Ashbury, every day brings new opportunities for recreation, relaxation, and connection in a community you'll love to call home.