
- Buy
- Rent
- Commercial
- Find a REALTOR®

1772 South Port Drive, Antioch, IL 60002

















































IL/Lake/Antioch/60002/1772 South Port Drive, Antioch, IL 600021772 South Port Drive, Antioch, IL 60002
1772 South Port Drive, Antioch, IL 60002
House for Sale by Bill Flemming, HomeSmart Connect LLC.
- Overview
- Details
- Open Houses
- More
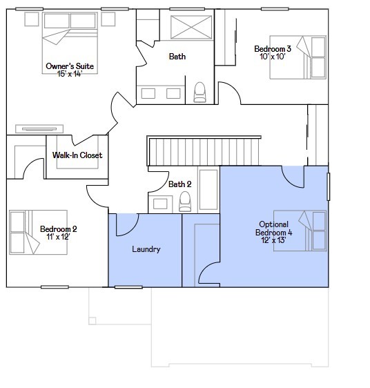
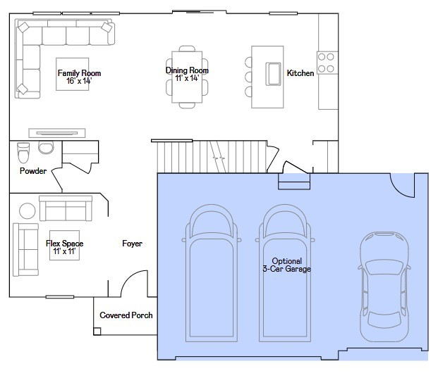
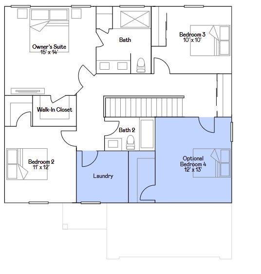
*Pre-construction Pricing and SPECIAL INCENTIVES AVAILABLE!* Homesite #0525. Experience the Meadowlark model, a masterfully designed two-story home combining style and convenience. With four bedrooms, two bathrooms, and a powder room, this home offers the perfect space for modern living. The first floor features a bright, open-concept layout, with a spacious family room, accessible dining area, and an impressive kitchen. The kitchen includes a large island with beautiful countertops, ample cabinetry, stainless steel appliances, and a built-in pantry for added storage. Situated on the second floor, the owner's suite provides a peaceful haven, complete with a walk-in closet and a spa-inspired bathroom with double sinks, a deluxe shower, and high-end finishes. Three additional bedrooms share a full bathroom, and the practicality of a second-floor laundry room enhances the home's livability. The versatile flex space offer endless possibilities for a home office, entertainment area, or extra living space to suit your needs. Throughout the home, thoughtful details like luxury vinyl plank flooring, quartz countertops, LED lighting, and decorative railings enhance both the aesthetic and functionality of every room. Exterior will be Slate color siding with Old World Ledge - Huron color stone. (pic for reference ONLY). *Photos are not this actual home* Nestled in a charming corner of Lake County, Antioch offers the serenity of small-town living with the convenience of modern amenities. Ideal for commuters, the community of Clublands of Antioch enjoys quick access to major thoroughfares like IL-173, US-45, the I-94 exchange, and the Antioch Metra Station-making travel to and from the area simple and efficient. Just minutes from home, downtown Antioch invites exploration with its welcoming mix of local eateries, boutique shops, cozy bars, home decor stores, and unique specialty retailers. For those craving outdoor adventure, Chain O'Lakes State Park is only a 30-minute drive away. Spanning 2,793 acres, the park offers year-round activities-from hiking, fishing, boating, and archery in the warmer months, to ice fishing, sledding, and skating when winter sets in. Antioch also boasts a strong network of beautiful parks and recreation centers. Williams Park, a local favorite, features open green spaces, scenic natural views, and a vibrant playground. In the summer, families flock to the community swimming pool located within the park, where children can enjoy the splash zone and thrilling water slide. Whether you're looking for relaxation, recreation, or a vibrant community atmosphere, the surrounding area of Clublands of Antioch delivers the best of suburban living in a peaceful and well-connected setting.
