
- Buy
- Rent
- Commercial
- Find a REALTOR®

207 Buchanan Drive, Waterman, IL 60556









IL/DeKalb/Waterman/60556/207 Buchanan Drive, Waterman, IL 60556207 Buchanan Drive, Waterman, IL 60556
207 Buchanan Drive, Waterman, IL 60556
House for Sale by Bill Flemming, HomeSmart Connect LLC.
- Overview
- Details
- Open Houses
- More
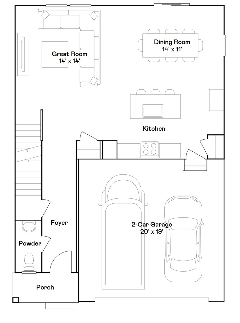
MOVE IN THIS SUMMER!! Homesite #0004. Discover the Broadmoor-a thoughtfully designed two-story home combining style and everyday comfort. With four bedrooms, two full bathrooms, a powder room, and a dedicated loft, it offers a spacious environment perfect for modern living and entertaining. The main level brings the great room, kitchen, and dining room together to form an open, welcoming space where everyone can gather with ease. The chef-worthy kitchen is the heart of the home, featuring stainless steel appliances, elegant 42 cabinetry, quartz countertops, and a large island that doubles as both a prep area and central gathering spot. This stylish, functional design ensures cooking and hosting are equally effortless and enjoyable. Upstairs, the private owner's suite is a true retreat, complete with a generous walk-in closet and a spa-inspired en-suite bathroom boasting dual sinks and a walk-in shower. Three additional bedrooms share a full bathroom, providing flexibility for guests, family, or a home office. A second-level laundry room adds daily convenience, and the standard two-car garage offers plenty of storage and ease of access. The Broadmoor is built to fit a dynamic lifestyle, blending thoughtful design with modern amenities. Exterior will be Aspen White Vinyl sidings. (pic for reference ONLY) Welcome to Deerfield Crossing, a serene community offering new single-family homes in the quiet, scenic town of Waterman, Illinois. Perfect for those who appreciate the outdoors and a slower pace of life, Deerfield Crossing places you near some of northern Illinois' most beautiful natural spaces and cultural attractions. Just a short drive away, Lions Community Park invites nature lovers to miles of scenic hiking trails and abundant wildlife. Whether you're picnicing, hiking, or simply unwinding in nature, this park offers endless opportunities for recreation. Outdoor enthusiasts will also love the nearby Muigan Park-an 5-acre scenic path perfect for biking, hiking, and peaceful walks surrounded by lush landscapes and quiet charm. And for those who crave connection to innovation and the arts, Northern Illinois University is just minutes away. Enjoy access to a vibrant campus filled with cultural events, Division I sports, art galleries, and world-class academic and research facilities. At Deerfield Crossing, you'll find the perfect balance of peaceful living, natural beauty, and enriching experiences-all in one exceptional location.
