
- Buy
- Rent
- Commercial
- Find a REALTOR®

2331 Stone Creek Drive, New Lenox, IL 60451










IL/Will/New Lenox/60451/2331 Stone Creek Drive, New Lenox, IL 604512331 Stone Creek Drive, New Lenox, IL 60451
2331 Stone Creek Drive, New Lenox, IL 60451
House for Sale by Bill Flemming, HomeSmart Connect LLC.
- Overview
- Details
- Open Houses
- More
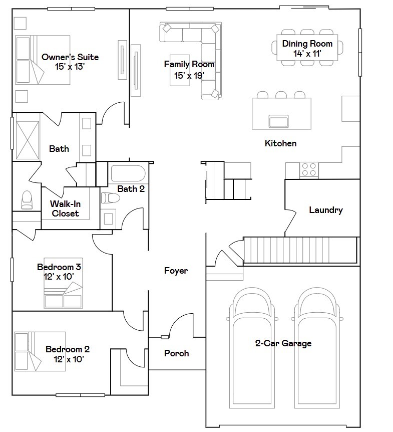
SPECIAL FINANCING AVAILABLE! READY FOR MARCH DELIVERY! Homesite #0054. Step into the Siena, a thoughtfully designed single-story home that blends comfort, efficiency, and modern style. This layout features three bedrooms and two bathrooms in an open-concept design that creates a seamless flow between the family room, dining area, and kitchen. At the center of it all, the kitchen offers a spacious island, stainless steel appliances, and generous cabinetry-perfect for both daily living and casual entertaining. Luxury vinyl plank flooring extends throughout the main living areas, offering both durability and a refined look. The private owner's suite serves as a quiet retreat, complete with an expansive walk-in closet and a spa-like en-suite bathroom. Two additional bedrooms are situated near a shared hallway bath, providing flexibility for guests, family, or a home office. A two-car garage and a conveniently located laundry room add to the home's functional appeal. The Siena delivers modern living in a streamlined, practical layout designed to suit a variety of lifestyles. Exterior will be Country Beige color siding with Benton color brick. (pic for reference ONLY). *Photos are not this actual home* Calistoga is a vibrant new community offering brand-new single-family homes in the charming and growing village of New Lenox, Illinois. Designed with families in mind, Calistoga places you close to a variety of local shopping and dining options, providing easy access to everyday conveniences and weekend entertainment. This community is ideal for commuters, with quick and convenient access to I-80, Route 45, and Route 52, making travel to and from Chicago simple and efficient. Residents of Calistoga will enjoy all the benefits of living in New Lenox, a village known for its welcoming atmosphere, strong sense of community, and wide range of events and amenities. Whether it's seasonal festivals, local parks, or community activities, there's always something happening that brings neighbors together and creates a strong, connected lifestyle. At Calistoga, you'll find more than just a home-you'll find a place to grow, connect, and enjoy everything that makes New Lenox a great place to live.