
- Buy
- Rent
- Commercial
- Find a REALTOR®

2440 W Cheyenne Road, Waukegan, IL 60087










IL/Lake/Waukegan/60087/2440 W Cheyenne Road, Waukegan, IL 600872440 W Cheyenne Road, Waukegan, IL 60087
2440 W Cheyenne Road, Waukegan, IL 60087
House for Sale by Silvia Carmona, Jason Mitchell Real Estate IL.
- Overview
- Details
- Open Houses
- More
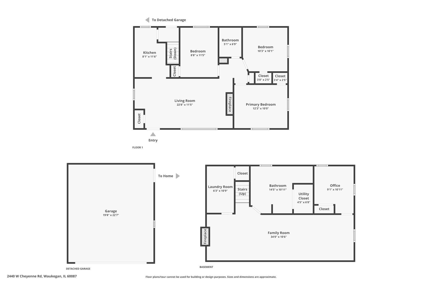
Discover the finest ranch in town at 2440 West Cheyenne Rd, located in the quiet 60087 Waukegan neighborhood. This stunning home has been remodeled to perfection, offering 4 bedrooms, 2 full baths, and a seamless blend of modern style, comfort, and functionality. Situated on a desirable corner lot, it's move-in ready and conveniently close to Great Lakes Navy Base, shopping, Gurnee Mills, and a variety of restaurants. Curb appeal is unmatched with fresh Sherwin-Williams exterior paint, brand-new windows, solar-powered exterior light fixtures, updated exterior lighting, professional landscaping, and a brand-new front porch - perfect for enjoying your morning coffee or evening relaxation. Step inside to experience a home transformed with elegant new flooring throughout, beautifully refinished wood stairs, modern doors with stylish hardware, fresh Sherwin-Williams paint, and crisp new baseboards and trim. The open living space seamlessly connects the living and dining areas, highlighted by a remote-controlled electric fireplace with customizable lighting, creating a cozy focal point. Ceiling fans in every room enhance comfort and energy efficiency. The chef-inspired kitchen has been meticulously redesigned with top-of-the-line stainless steel LG appliances, sleek new cabinets with brushed gold hardware, a drop-in kitchen sink workstation with basin rack, basket strainer, and cutting board, quartz countertops, a sophisticated over-the-range hood, and a designer backsplash. This functional and chic space is ideal for culinary creativity or entertaining guests. The upstairs bathroom has been luxuriously reimagined with a brand-new tub, brushed gold shower system, black marble-print tile, modern vanity with brushed gold faucet, sink and gold-detailed countertop, stylish gold light fixtures and mirror, GFCI outlets, new flooring, and a new toilet, creating a spa-like retreat for relaxation. The spectacular finished basement is perfectly designed for entertaining, with its spacious layout accommodating diverse ambiances. It features new flooring, fresh paint, recessed can lighting with multiple tones, and contemporary fixtures. The space includes a second electric fireplace, an additional room perfect as a 4th bedroom or office, and a spacious modernized bathroom with new vanity, Porcelain countertop, LED mirror, standing shower with massage tower, and new toilet. The basement laundry area offers a brand-new LG washer, dryer, sink/faucet, new cabinet, and closet space. This versatile space is ideal for entertaining, working from home, or family fun. The detached two-car garage provides additional room for projects or gatherings and comes equipped with 240-volt capability, ready for electric vehicle installation, and gas hook-up for your grill. This home is a true masterpiece, blending thoughtful modern updates with timeless charm. Move in and experience the ultimate combination of comfort, style, and versatility!