
- Buy
- Rent
- Commercial
- Find a REALTOR®

2440 W Cheyenne Road, Waukegan, IL 60087










IL/Lake/Waukegan/60087/2440 W Cheyenne Road, Waukegan, IL 600872440 W Cheyenne Road, Waukegan, IL 60087
2440 W Cheyenne Road, Waukegan, IL 60087
House for Sale by Silvia Carmona, Jason Mitchell Real Estate IL.
- Overview
- Details
- Open Houses
- More
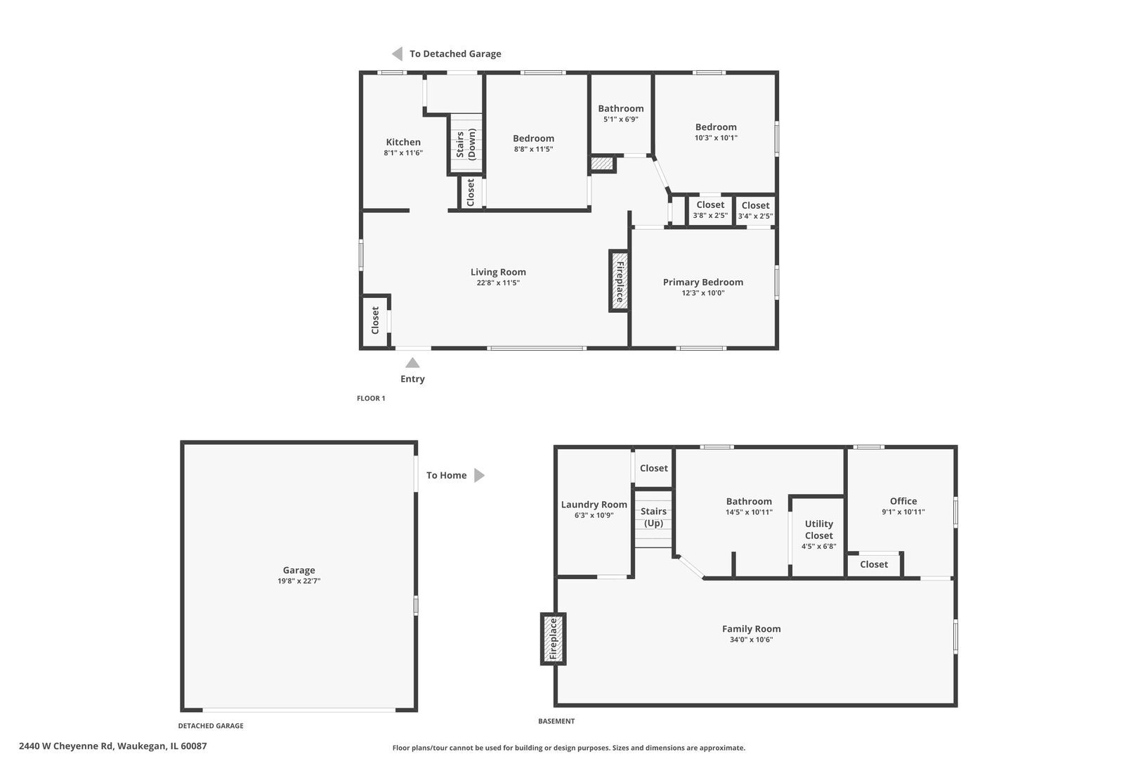
YES, you can AFFORD it! The TAXES are very LOW! Discover the finest ranch in town at 2440 West Cheyenne Rd, located in the quiet 60087 Waukegan neighborhood. This stunning home has been remodeled to perfection, offering four bedrooms, two full baths, & a seamless blend of modern style, comfort, and functionality. Situated on a desirable corner lot, this property is move-in ready & conveniently close to Great Lakes Navy Base, shopping, Gurnee Mills, and a variety of restaurants with easy access to major roads that connect you to Wisconsin & Chicago. Curb appeal is unmatched with fresh Sherwin-Williams exterior paint & brand-new windows. Light fixtures: You have outside solar-powered exterior light fixtures & inside updated interior ceiling lighting, LED, & also a smart integrated LED recessed lighting system. Professional landscaping, & a brand-new front porch - perfect for enjoying your morning coffee or evening relaxation. Step inside to experience a home transformed with elegant new flooring throughout, beautifully refinished wood stairs, modern doors with stylish hardware, fresh Sherwin-Williams paint, & crisp new baseboards and trim. The open living space seamlessly connects the living & dining area, highlighted by a remote-controlled electric fireplace with customizable lighting, creating a cozy focal point. Ceiling fans in every room enhance comfort and energy efficiency. The chef-inspired kitchen has been meticulously redesigned with top-of-the-line stainless steel LG appliances, sleek new cabinets with brushed gold hardware, a drop-in kitchen sink workstation with basin rack, basket strainer, & cutting board, quartz countertops, a sophisticated over-the-range hood, & a designer backsplash. This functional & chic space is ideal for culinary creativity or entertaining guests. The upstairs bathroom has been luxuriously reimagined with a brand-new tub, brushed gold shower system, black marble-print tile, modern vanity with brushed gold faucet, sink & gold-detailed countertop, stylish gold light fixtures & mirror, GFCI outlets, new flooring, & a new toilet, creating a spa-like retreat for relaxation. The spectacular finished lower level is perfectly designed for entertaining, with its spacious layout accommodating different areas, each designed for specific activities, to function harmoniously. It features new flooring, freshly painted, and smart integrated LED recessed lighting with different tonalities. The lower level included a second electric fireplace with a remote control, adding a special touch on winter nights with a cozy ambiance. There is an additional room perfect as a 4th bedroom or office, & a spacious modernized bathroom with a new vanity, Porcelain countertop, LED mirror, standing shower with massage tower, and a new toilet. The laundry area offers a brand-new LG washer, dryer, sink/faucet, new cabinet, and closet space. This versatile space is perfect for entertaining, working from home, or enjoying family time. The detached two-car garage provides additional room for projects or gatherings and comes equipped with 240-volt capability, ready for electric vehicle installation, and a gas hook-up for your grill. This home is a true masterpiece, blending thoughtful modern updates with timeless charm. Move in and experience the ultimate combination of comfort, style, and versatility! FHA AND VA ARE WELCOME!