
- Buy
- Rent
- Commercial
- Find a REALTOR®

2856 Church Road, Aurora, IL 60502










IL/Kane/Aurora/60502/2856 Church Road, Aurora, IL 605022856 Church Road, Aurora, IL 60502
2856 Church Road, Aurora, IL 60502
Townhouse for Sale by Alice Chin, Compass.
- Overview
- Details
- Open Houses
- More
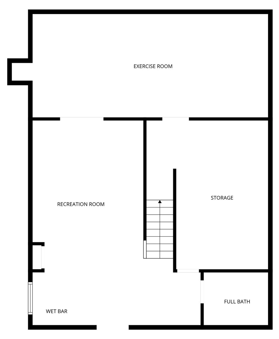
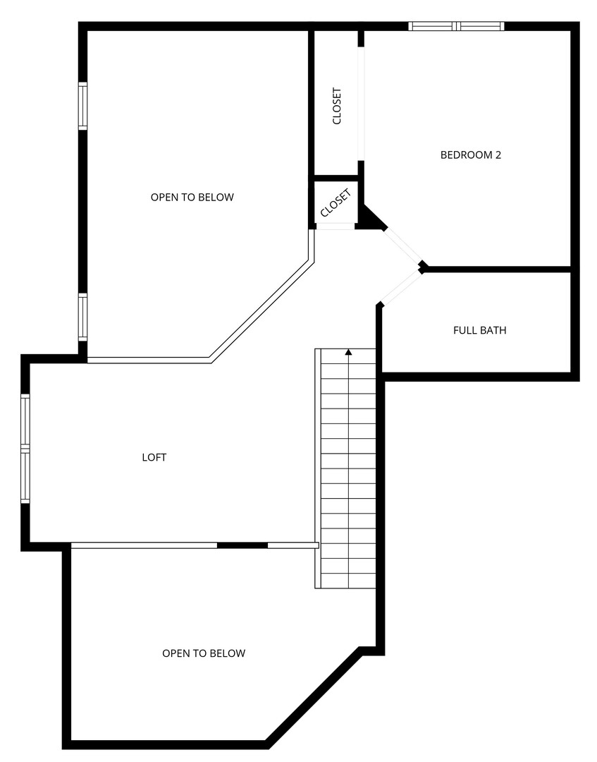
This end-unit townhome with a full finished basement, originally the builder's model, is the only Brantley floor plan in Savannah Crossing! The main level features a stunning two-story great room with a fireplace and sliding doors to the back deck, creating seamless indoor-outdoor entertaining. The beautiful kitchen includes SS appliances, cherry cabinetry with crown molding, granite countertops, and hardwood flooring that flows into the adjacent eating area with a vaulted ceiling and chandelier. The primary suite, also on the main level, offers two closets and a luxurious en suite bath. A convenient powder room and laundry room complete the first floor. Upstairs, the versatile loft overlooks the great room and is perfect as a playroom or home office. The second bedroom is ideally located next to a full bath. The finished basement is sure to impress, showcasing an expansive rec room with a wet bar and another full bath, perfect for entertaining. A pocket door leads to the unfinished section, providing abundant storage space and easy access to the mechanicals. Additional highlights include extensive woodwork throughout, a private entrance, a two-car garage, and a gorgeous lot backing to mature trees. This home attends Batavia SD 101 schools: J.B. Nelson Elementary, Sam Rotolo Middle School, and Batavia Senior High School. Marmion Academy is also less than a mile up the road. This unit is situated in an unbeatable location with countless shopping and dining options along Kirk Rd, Farnsworth Ave, and Butterfield Rd, all just minutes away. Plus, easy access to I-88 makes commuting a breeze. This one truly checks all the boxes!