
- Buy
- Rent
- Commercial
- Find a REALTOR®

28W569 Warrenville Road, Warrenville, IL 60555










IL/DuPage/Warrenville/60555/28W569 Warrenville Road, Warrenville, IL 6055528W569 Warrenville Road, Warrenville, IL 60555
28W569 Warrenville Road, Warrenville, IL 60555
House for Sale by Brad McCreary, Keller Williams Infinity.
- Overview
- Details
- Open Houses
- More
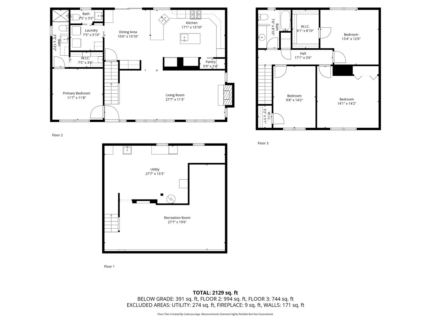
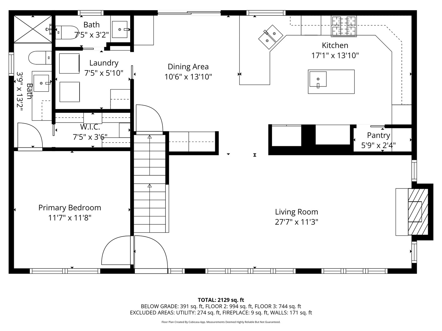
Welcome to 28W569 Warrenville Road, a beautifully updated 4-bedroom, 2.5-bathroom home located in the heart of charming Warrenville-right on the city's famed 3rd of July Parade route! This spacious and thoughtfully maintained residence features a full first-floor remodel completed in 2016, including a stunning custom kitchen with granite countertops, cabinetry with built-in organizational inserts, and a large island with a second prep sink-perfect for entertaining. The first-floor master suite offers a luxurious ensuite bathroom with custom ceramic tile, a glass shower door, and heated floors for a spa-like experience. Additional main floor highlights include oak hardwood flooring, a cozy wood-burning fireplace, and a stylish half-bathroom. The home is equipped with a high-efficiency furnace, air conditioner, and water heater, all replaced in 2016, along with newer windows and a sliding glass door that brings in abundant natural light. Upstairs, you'll find three generously sized bedrooms and an updated full bathroom. The home also includes a partially finished basement, offering extra living space and generous storage. Outside, enjoy a newer roof and gutters (2022), a driveway replaced just four years ago, a detached 2-car garage, a back deck, garden area, and a charming custom-built playhouse. Modern upgrades such as a 200-amp electrical panel, whole house fan, water softener, and upgraded insulation add to the home's efficiency and comfort. Ideally located near Bower Elementary School, the Prairie Path, Cerny Park, the Warrenville Library, and Park District facilities. This home is just minutes from Target, Lifetime Fitness, Main Event, I-88, and the shopping and dining of Danada. You're also a short drive from both Downtown Naperville and Downtown Wheaton. This home feeds into the award-winning Wheaton Warrenville School District! This is a rare opportunity to own a move-in-ready home in one of Warrenville's most desirable neighborhoods-with front-row seats to one of the community's most beloved traditions.