
1 home available
2950 Shelly Lane #2950, Aurora, IL 60504
Price Reduced $60,000

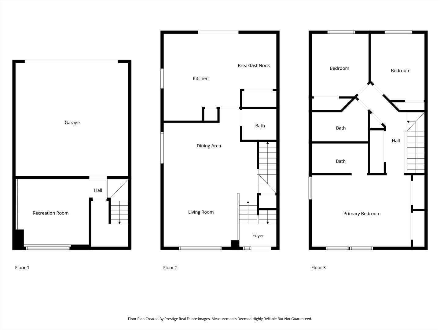
$320,000
3beds
2.5bath
1,480sqft
–acres
Townhouse for Sale
2950 Shelly Lane #2950, Aurora, IL 60504
Listing by: Chicagoland Brokers, Inc
1 - 1 of 1 results

6655 Main St., Downers Grove, IL 60516
© 2026 Mainstreet REALTORS® All Rights Reserved.
Display of MLS Data is usually deemed reliable but is NOT guaranteed accurate by the MLS. Buyers are responsible for verifying the accuracy of all information and should investigate the data themselves or retain appropriate professionals.





















