
- Buy
- Rent
- Commercial
- Find a REALTOR®

310 Harvest Avenue, Hinckley, IL 60520










IL/DeKalb/Hinckley/60520/310 Harvest Avenue, Hinckley, IL 60520310 Harvest Avenue, Hinckley, IL 60520
310 Harvest Avenue, Hinckley, IL 60520
House for Sale by Bill Flemming, HomeSmart Connect LLC.
- Overview
- Details
- Open Houses
- More
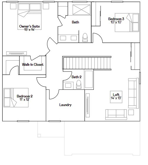
READY FOR FEBRUARY DELIVERY!! Homesite #0063 Experience the Meadowlark model, a masterfully designed two-story home combining style and convenience. With four bedrooms, two bathrooms, and a powder room, this home offers the perfect space for modern living. The first floor features a bright, open-concept layout, with a spacious family room, accessible dining area, and an impressive kitchen. The kitchen includes a large island with beautiful countertops, ample cabinetry, stainless steel appliances, and a built-in pantry for added storage. Situated on the second floor, the owner's suite provides a peaceful haven, complete with a walk-in closet and a spa-inspired bathroom with double sinks, a deluxe shower, and high-end finishes. Two additional bedrooms share a full bathroom, and the practicality of a second-floor laundry room enhances the home's livability. The versatile flex space offer endless possibilities for a home office, entertainment area, or extra living space to suit your needs. Throughout the home, thoughtful details like luxury vinyl plank flooring, quartz countertops, LED lighting, and decorative railings enhance both the aesthetic and functionality of every room. *Photos are not this actual home* Exteriors will be Indigo colored vinyl sidings with Huron colored stone. Royal Estates is a brand-new community of single-family homes for sale in Hinckley, IL, offering residents a quiet, scenic setting with easy access to nature, recreation, and enriching experiences. Outdoor lovers will appreciate close proximity to Shabbona Lake State Park, a 105-acre haven for fishing, boating, hiking, and wildlife watching. Its scenic trails and serene landscapes make it an ideal destination for both adventure and relaxation. For even more outdoor enjoyment, the Great Western Trail offers an 18.5-mile path perfect for hiking, biking, or a peaceful walk surrounded by lush greenery and abundant wildlife-a refreshing escape from the everyday. Just a short drive away, Northern Illinois University (NIU) brings a vibrant energy to the region with its cultural events, athletic programs, art galleries, and concerts. As a hub of innovation and education, NIU also offers world-class academics and research opportunities. At Royal Estates, you'll find the perfect blend of quiet small-town charm, access to outdoor recreation, and connection to world-class resources-making it a community where you can truly thrive.