
- Buy
- Rent
- Commercial
- Find a REALTOR®

3871 Meadowridge Road, Woodstock, IL 60098



































IL/McHenry/Woodstock/60098/3871 Meadowridge Road, Woodstock, IL 600983871 Meadowridge Road, Woodstock, IL 60098
3871 Meadowridge Road, Woodstock, IL 60098
House for Sale by Bill Flemming, HomeSmart Connect LLC.
- Overview
- Details
- Open Houses
- More
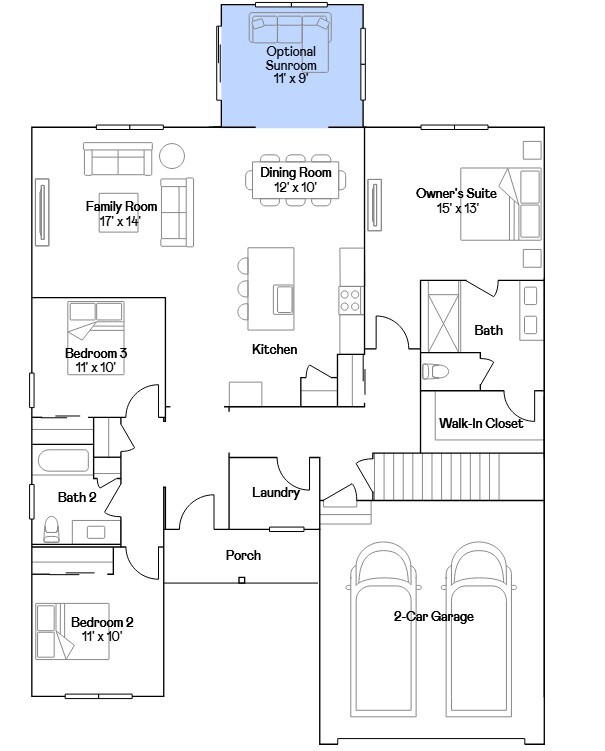
SPECIAL FINANCING OFFERS AVAILABLE! READY FOR MAY DELIVERY! Homesite #0086. Welcome to the Rutherford-a beautifully crafted single-story home that perfectly balances modern design with everyday functionality. This inviting layout features three well-appointed bedrooms, two full bathrooms, and an added sunroom all thoughtfully arranged within an open-concept floor plan that promotes easy living and effortless flow. At the heart of the home, the kitchen shines with a large center island, sleek stainless steel appliances, and ample cabinetry, making it ideal for both weeknight dinners and weekend gatherings. Durable luxury vinyl plank flooring spans the main living spaces, combining elegance with resilience. The private owner's suite offers a peaceful escape, complete with a generous walk-in closet and a spa-inspired en-suite bath for ultimate relaxation. Two additional bedrooms are positioned near a shared bathroom, providing versatile space for guests, children, or a home office. Practical features like a two-car garage and a centrally located laundry room enhance the home's everyday convenience. Designed with both comfort and style in mind, the Rutherford is a smart and sophisticated choice for modern living. Exterior will be Indigo color vinyl siding. (pic for reference ONLY) There is currently no active SSA at this community *Photos are not this actual home* At the heart of a warm, welcoming community, this thoughtfully designed neighborhood offers the perfect blend of modern living and historic charm. Surrounded by peaceful streets and open green spaces, residents can enjoy walkable pathways, cozy cul-de-sacs, and the comfort of a tight-knit atmosphere. Just minutes away, downtown Woodstock invites you to explore its vibrant mix of antique shops, local dining favorites, and year-round community events. Steeped in rich history and hometown pride, the area buzzes with activity - from seasonal farmers' markets and summer concerts in the square to art fairs and holiday parades. Nature lovers and active families will appreciate the abundance of nearby parks and recreation centers, offering everything from playgrounds to walking trails. Whether you're grabbing coffee in a charming local cafe or enjoying a weekend stroll through beautiful green spaces, Woodstock offers something for everyone - with a lifestyle that feels both timeless and modern.
