
- Buy
- Rent
- Commercial
- Find a REALTOR®

532 7th Street, Lasalle, IL 61301











































































IL/LaSalle/Lasalle/61301/532 7th Street, Lasalle, IL 61301532 7th Street, Lasalle, IL 61301
532 7th Street, Lasalle, IL 61301
House for Sale by Beth Mulcahy, Landmark Realty of Illinois LLC.
- Overview
- Details
- Open Houses
- More
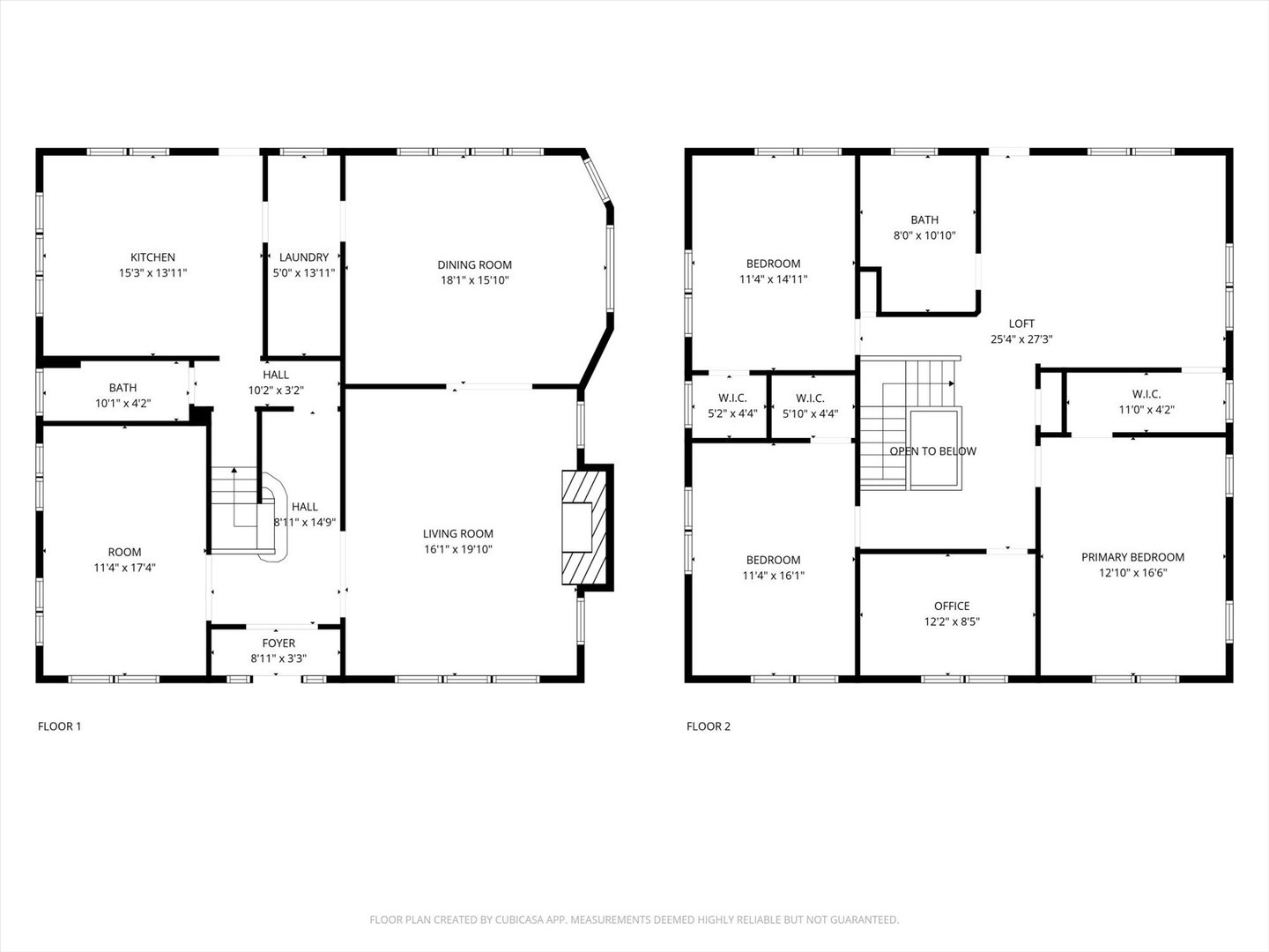
A masterpiece awaits - this classic, elegant brick Home bursts with realms of unique features, framed with beautiful original woodwork. With four bedrooms, 2 and 1/2 baths, the stated figure of over 3000 square feet of living space doesn't begin to convey the feeling of extravagant spaciousness. Stepping into the front entrance, you'll stop just to catch your breath. The space feels airy and expansive in all the right ways. Natural light pours into every room, bouncing off the gleaming hardwood. The massive living room features a wood-burning fireplace - just in time for the Holidays! The beams, the french doors, the multitude of separate living areas, the soaring 9-1/2-foot ceilings - all effortlessly impress and convey a feeling of comfort and warmth. There is no one who won't love this kitchen! The bank of windows, the radiant-heat flooring, the crazy amount of storage in beautiful cabinetry are phenomenal. Add to that the Butler's pantry/laundry room with the wall of storage and pass-through window that ties into the large dining room. Upstairs you'll marvel at the layout of family room, with adjoining full bath featuring double sinks, walk-in shower, as well as a tub. Perfect! Four large bedrooms - the master sporting a walk-in closet - complete the picture. The full, useable basement with it's 8-foot ceilings boasts scads of storage opportunity, a great room for recreational use, and even more room for hobby area or workshop. You'll find yet another full bathroom on this level! The fully-fenced back yard holds the perfect proportions of grass, concrete pad/basketball court, and pea-gravel playground area that could easily be transformed into a prize-winning garden. Thoughtful out-door living design gives you the massive front porch wrapping around to the lovely screened porch, which in turn leads to the wrap-around wooden deck. A rarity! Take a look at the Features Sheet to see additional attractions - and come in person to find a few more we haven't mentioned! Character, charm, and luxury combine to offer you a move-in-ready treasure of a Home. Come take a closer look and make it your own!
