
- Buy
- Rent
- Commercial
- Find a REALTOR®

542 Chapel Street, Ottawa, IL 61350










IL/LaSalle/Ottawa/61350/542 Chapel Street, Ottawa, IL 61350542 Chapel Street, Ottawa, IL 61350
542 Chapel Street, Ottawa, IL 61350
House for Sale by George Shanley, Coldwell Banker Real Estate Group.
- Overview
- Details
- Open Houses
- More
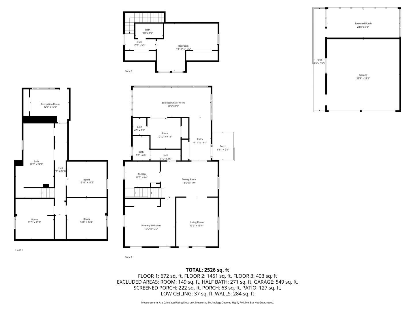
Experience riverfront living at its finest on Ottawa's Historic East Side , the Town Of Two Rivers and Starved Rock Country! This beautifully updated 3-bedroom, 2 full and 2 half-bathroom home combines timeless character with modern comfort and stunning panoramic views of the Fox river. From the moment you arrive, the inviting front porch sets the tone for this charming property. Inside, the living room offers a peaceful retreat, leading to a gorgeous formal dining room that truly serves as the heart of the home-perfectly connecting the main floor bedroom, kitchen, and full bathroom. The updated cook's kitchen features soapstone countertops and backsplash, rich cabinetry, and a thoughtful layout ideal for both everyday living and entertaining. A sun-filled back sunroom/river room steals the show with dramatic windows that showcase breathtaking river views and offers additional space for dining or relaxing. Just off this area, you'll find a flexible room that can serve as a den, office, or guest bedroom with its own private half bathroom. Upstairs, the spacious primary suite offers built-in storage, generous closet space, and a full bathroom for added comfort. The walk-out lower level provides even more living space, including a family room, laundry area, multiple flex rooms, a half bathroom, and direct access to a patio overlooking the river-perfect for enjoying tranquil sunsets over the water. Step outside to discover your own fenced private retreat, complete with multiple decks overlooking the river, with a private side yard, and a screened-in porch attached to the two-car garage-ideal for relaxing with a view. Recent updates include a new A/C unit (2023), fence installation (2024), washer and dryer (2025), and a new Thor oven (2025). Conveniently located within walking distance to Ottawa's vibrant downtown restaurants, shops, the new YMCA, and the scenic riverwalk, this home offers the perfect balance of small-town charm and peaceful waterfront living. Don't miss your chance to own one of Ottawa's most special riverfront homes!