
1 home available
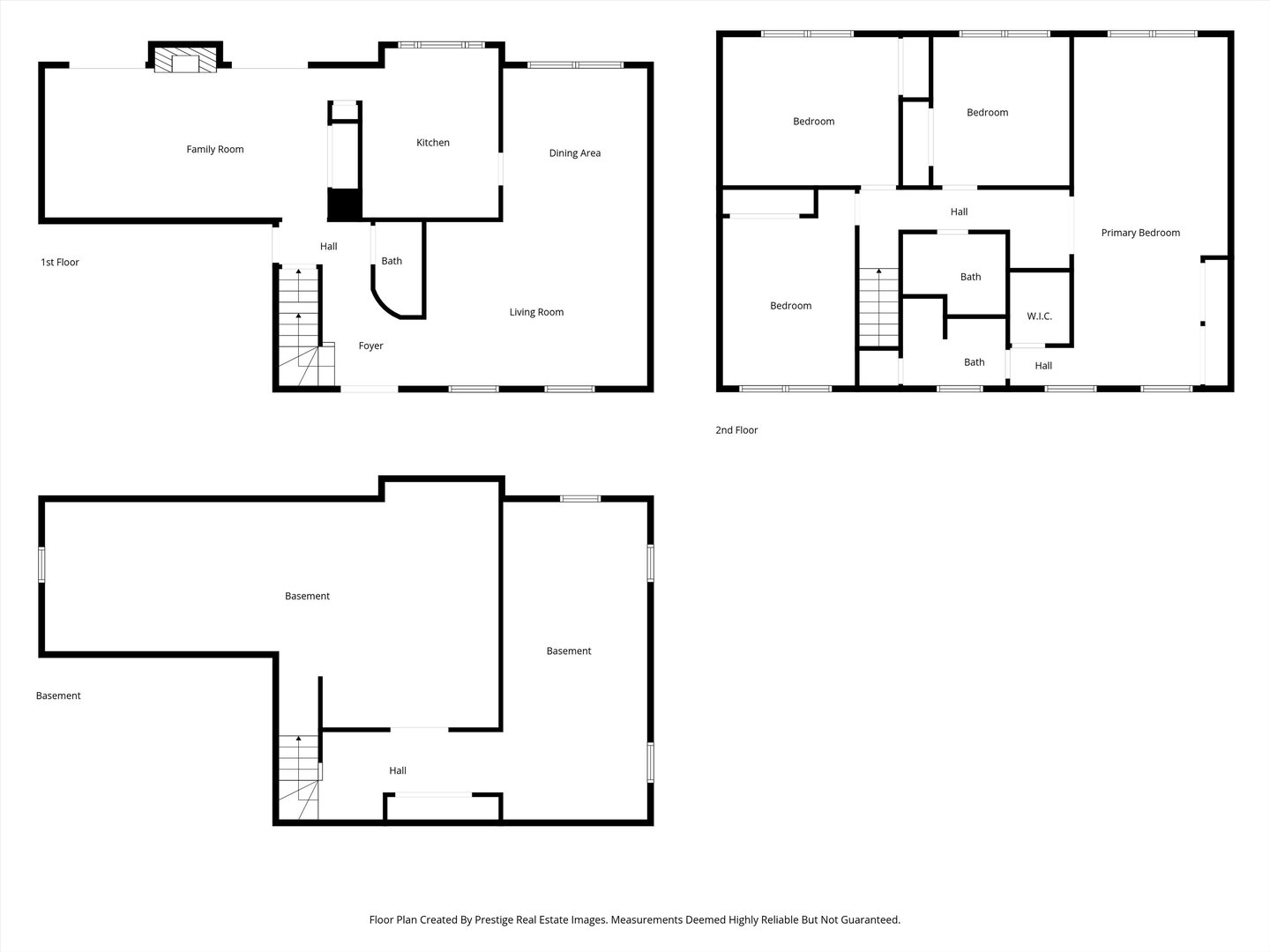
5S671 Heather Court, Naperville, IL 60540
Price Reduced $10,000

$539,700
4beds
2.5bath
2,299sqft
0.21acres
House for Sale
5S671 Heather Court, Naperville, IL 60540
Listing by: Keller Williams Preferred Rlty
1 - 1 of 1 results

6655 Main St., Downers Grove, IL 60516
© 2026 Mainstreet REALTORS® All Rights Reserved.
Display of MLS Data is usually deemed reliable but is NOT guaranteed accurate by the MLS. Buyers are responsible for verifying the accuracy of all information and should investigate the data themselves or retain appropriate professionals.

























