
- Buy
- Rent
- Commercial
- Find a REALTOR®

6139 S Saint Lawrence Avenue, Chicago, IL 60637







































IL/Cook/Chicago/60637/6139 S Saint Lawrence Avenue, Chicago, IL 606376139 S Saint Lawrence Avenue, Chicago, IL 60637
6139 S Saint Lawrence Avenue, Chicago, IL 60637
Multi Family for Sale by Marianna Mosz, KOMAR.
- Overview
- Details
- Open Houses
- More
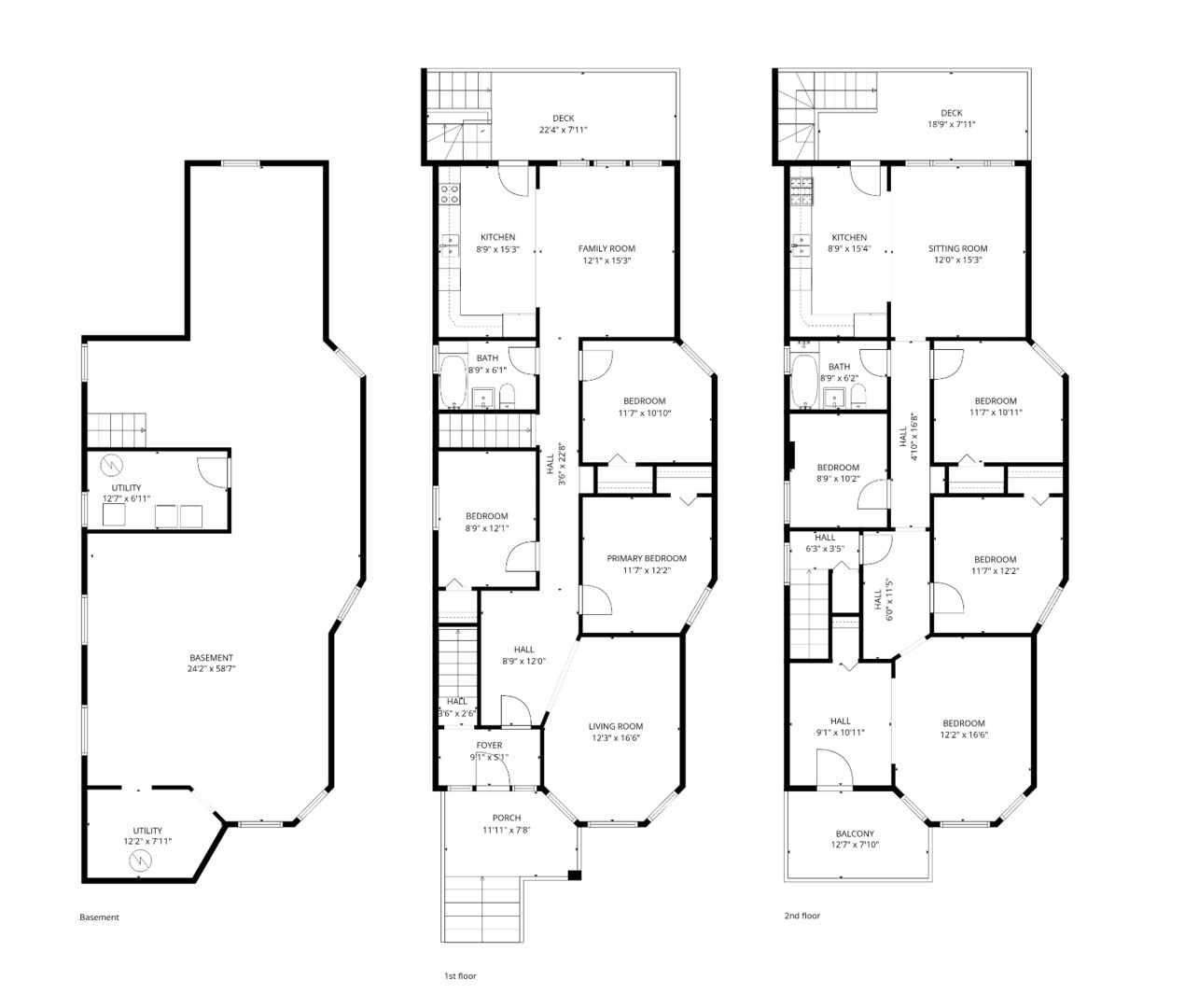
Welcome to this fully remodeled and thoughtfully updated two-unit property located in the heart of Chicago's Woodlawn neighborhood. Situated at 6139 S Saint Lawrence Ave, this impressive building offers 6 bedrooms and 2 bathrooms, making it an excellent opportunity for those seeking modern living. Completely renovated from top to bottom, the property showcases quality craftsmanship and contemporary finishes throughout. Each unit features high ceilings and oversized windows that flood the space with natural light, creating a bright and inviting atmosphere. Stylish flooring runs throughout, with original hardwood preserved underneath for added long-term value. All bedrooms are generously sized and include closets with built-in shelving for practical storage. The kitchens have been beautifully designed with quartz countertops, sleek contemporary backsplash tile, custom-built soft-close cabinetry, and brand-new appliances, offering a clean and modern aesthetic. Both units provide comfortable and functional layouts, with the first-floor unit extending into the basement for additional living space, while the second unit benefits from separate exterior access to basement storage. Outdoor living is equally appealing, with each unit featuring its own private porch suitable for grilling or relaxing. The second-floor unit also includes a front-facing balcony, enhancing both space and appeal. The property also features a newly constructed two-car garage. The home has been updated with all-new plumbing and a completely modernized electrical system. Ideally located just minutes from Hyde Park, this home offers exceptional access to some of Chicago's most sought-after destinations, including the University of Chicago, the Museum of Science and Industry, and the expansive green spaces of Washington Park. Nearby 53rd Street provides a vibrant mix of dining, shopping, and entertainment, with popular spots like Sweetgreen, Chipotle, Mesler Restaurant, Italian Fiesta Pizzeria, Philz Coffee, Robust Coffee Lounge, and Sip & Savor. Additionally, this property may qualify for the University of Chicago Employer Assisted Housing Program, which offers assistance for eligible University of Chicago employees purchasing an owner-occupied home in Woodlawn. Buyers are encouraged to confirm eligibility and program details directly with their department or HR representative. This fully rehabbed property offers the perfect blend of modern updates, flexibility, and income potential in a rapidly developing area.
