
- Buy
- Rent
- Commercial
- Find a REALTOR®

710 W 81st Place, Chicago, IL 60620















































IL/Cook/Chicago/60620/710 W 81st Place, Chicago, IL 60620710 W 81st Place, Chicago, IL 60620
710 W 81st Place, Chicago, IL 60620
House for Sale by Fernando Godoy, eXp Realty.
- Overview
- Details
- Open Houses
- More
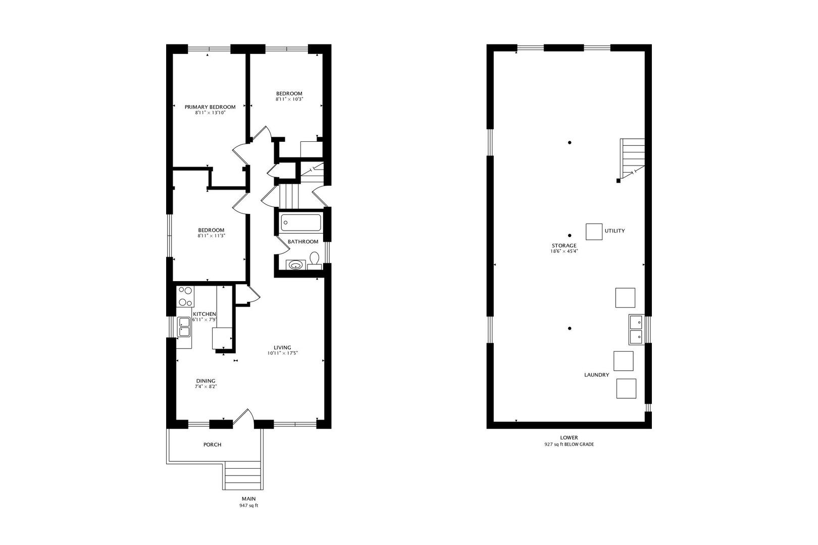
*** BE AWARE OF SCAM, THIS PROPERTY IS ABSOLUTELLY NOT FOR RENT ***Located in the Auburn Gresham neighborhood of Chicago, this classic brick bungalow sits on a standard city lot and offers timeless exterior appeal with the potential for future value through renovation. With 3 bedrooms, 1 bathroom, and a full unfinished basement, the property presents an excellent opportunity for a buyer seeking a project or long-term investment. The architecture, lot features, and layout create a strong foundation for customization and modernization. The exterior of the home features a traditional red brick facade, a pitched roofline, and original window arrangements that reflect early 20th-century Chicago residential design. The home's raised profile includes a covered front porch framed by masonry columns and iron railings, leading up from a concrete walkway and fenced front yard. This welcoming entryway adds both security and charm and creates a distinct separation from the street. The elevated steps and full-width porch offer potential for future decorative elements like seasonal planters, porch seating, or accent lighting. The property sits on a typical Chicago lot with alley access, giving the backyard a versatile layout that can support future improvements. The rear yard is grassy, flat, and fully open, offering plenty of space for landscaping, recreational use, or the construction of a garage or parking pad. With alley access already in place, off-street parking is easily achievable, and the yard provides an excellent backdrop for outdoor upgrades like patios, fencing, or garden beds. Brick homes like this one offer durability and insulation that hold their value over time, and this home's exterior appears to be in average condition, with visible wear consistent with its age. The structure appears solid from the street, and surrounding homes on the block are similarly styled brick bungalows or single-family residences. This consistency gives the area a well-maintained, cohesive appearance that supports long-term livability and market stability. The property is located on a quiet residential block lined with mature trees, sidewalks, and similar well-kept homes. The neighborhood features a mix of owner-occupied and investment properties, with ongoing renovation activity evident in various parts of Auburn Gresham. This property, with its original layout and generous lot features, is an excellent candidate for thoughtful updating. As per public record, the home includes 3 bedrooms and 1 bathroom, all on the main level, along with a full unfinished basement that offers high ceilings and open floor space. The basement has the potential to become a large family room, additional bedrooms, office space, or a second bathroom, depending on your renovation goals. Whether you're planning to create a comfortable owner-occupied residence or a cash-flowing rental property, the layout and lot support a wide range of possibilities. This home is especially well-suited for contractors, rehabbers, or handy buyers looking to build equity through improvements. The layout is practical, and the bones are strong, allowing you to focus on aesthetic and functional upgrades. The backyard space is ideal for families, pet owners, or those looking to host outdoor gatherings, and the front porch adds to the home's overall curb appeal and usability. Nearby, the area offers convenient access to public transportation, retail corridors, parks, schools, and recreational facilities. The location balances residential comfort with accessibility, making it a desirable part of the South Side for both homeowners and renters. With its traditional design, functional layout, and classic Chicago charm, this home presents a rewarding opportunity to restore and modernize a property with great bones. Whether you're looking to live in, flip, or rent out, this bungalow has the lot size, structure, and neighborhood support to become a successful long-term investme
