
- Buy
- Rent
- Commercial
- Find a REALTOR®

7513 Blueblossom Lane, Joliet, IL 60431

















































IL/Kendall/Joliet/60431/7513 Blueblossom Lane, Joliet, IL 604317513 Blueblossom Lane, Joliet, IL 60431
7513 Blueblossom Lane, Joliet, IL 60431
House for Sale by Bill Flemming, HomeSmart Connect LLC.
- Overview
- Details
- Open Houses
- More
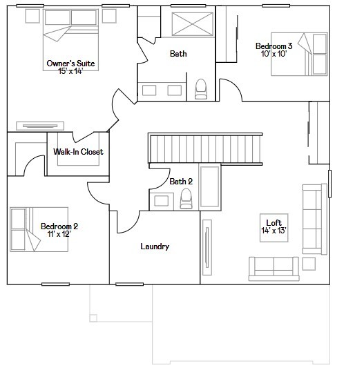
Homesite# 0581 Experience the Meadowlark model, a masterfully designed two-story home combining style and convenience. With three bedrooms, two bathrooms, and a powder room, this home offers the perfect space for modern living. The first floor features a bright, open-concept layout, with a spacious family room, accessible dining area, and an impressive kitchen. The kitchen includes a large island with beautiful countertops, ample cabinetry, stainless steel appliances, and a built-in pantry for added storage. Situated on the second floor, the owner's suite provides a peaceful haven, complete with a walk-in closet and a spa-inspired bathroom with double sinks, a deluxe shower, and high-end finishes. Two additional bedrooms share a full bathroom, and the practicality of a second-floor laundry room enhances the home's livability. The versatile loft and flex space offer endless possibilities for a home office, entertainment area, or extra living space to suit your needs. Throughout the home, thoughtful details like luxury vinyl plank flooring, quartz countertops, LED lighting, and decorative railings enhance both the aesthetic and functionality of every room. E (pic for reference ONLY) *Photos are not this actual home* Welcome to Lakewood Prairie, a vibrant new master-planned community offering beautifully designed new homes in Joliet, Illinois. This thoughtfully developed neighborhood features family-friendly amenities including multi-use trails, a tot lot, and plenty of open green space-perfect for enjoying the outdoors and building a connected community. Situated in the heart of Joliet, Lakewood Prairie offers more than just a place to live-it offers a lifestyle. Joliet is a city rich in history, culture, and recreation, with easy access to world-class entertainment and everyday conveniences. Explore the charm of Downtown Joliet, located along the scenic Des Plaines River. This dynamic and walkable area is filled with local restaurants, boutique shops, and renowned museums. Signature events like the Taste of Joliet festival and the Joliet Christmas Parade bring the community together year-round for celebration and fun. Lakewood Prairie combines modern suburban living with the energy and accessibility of Joliet-offering the best of both worlds for families, professionals, and everyone in between.
