
1 result available
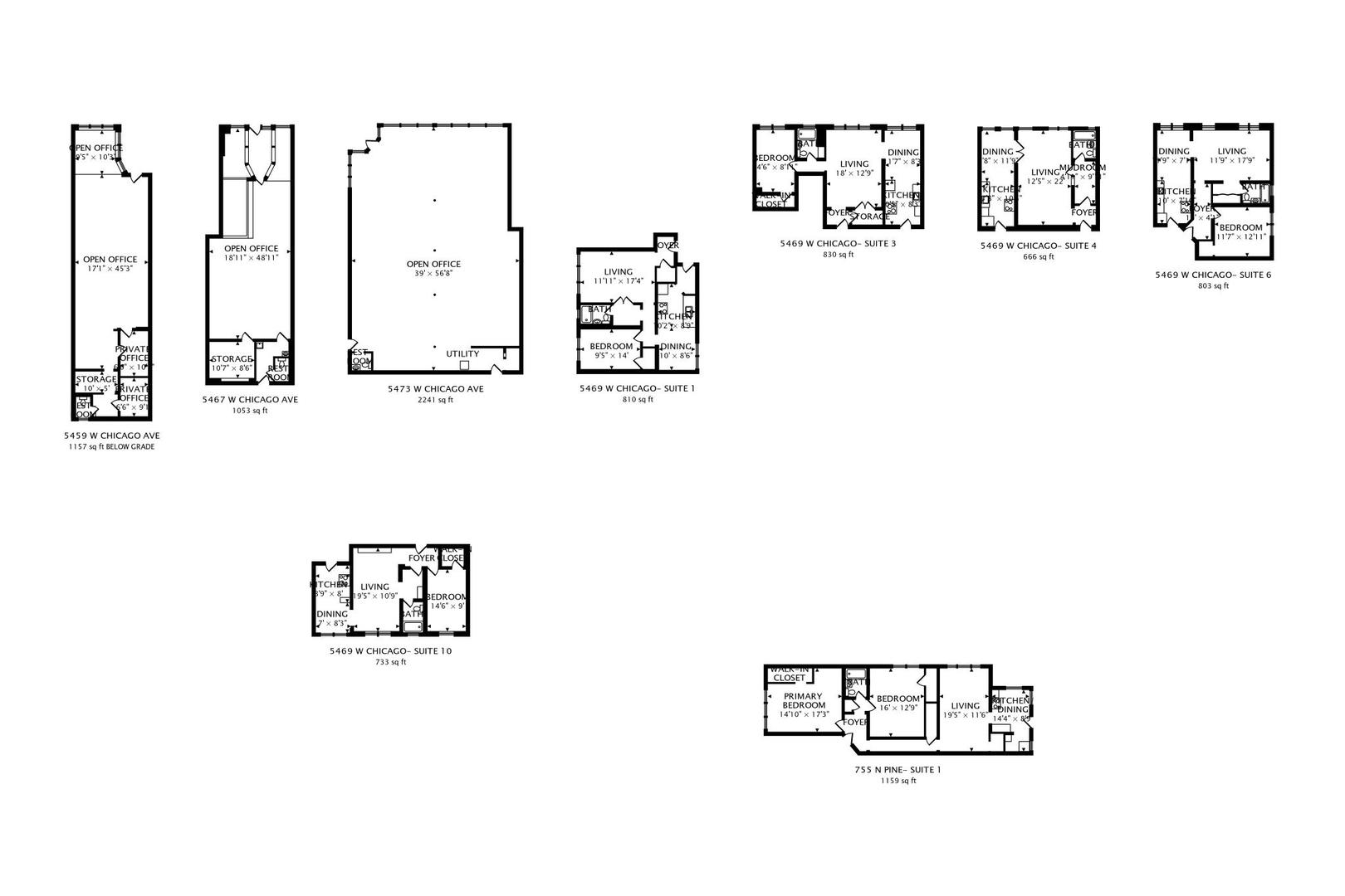
759 N Pine Avenue, Chicago, IL 60644
Price Reduced $100,999

$1,299,000
15,000sqft
–acres
Commercial Mixed-use for Sale
759 N Pine Avenue, Chicago, IL 60644
Listing by: Hometown Real Estate Group LLC
1 - 1 of 1 results

6655 Main St., Downers Grove, IL 60516
© 2026 Mainstreet REALTORS® All Rights Reserved.
Display of MLS Data is usually deemed reliable but is NOT guaranteed accurate by the MLS. Buyers are responsible for verifying the accuracy of all information and should investigate the data themselves or retain appropriate professionals.























