
1 home available
Elgin, IL 60120
NEW 6 hrs agoOpen Sat 11:00 AM-1:00 PM
$300,000
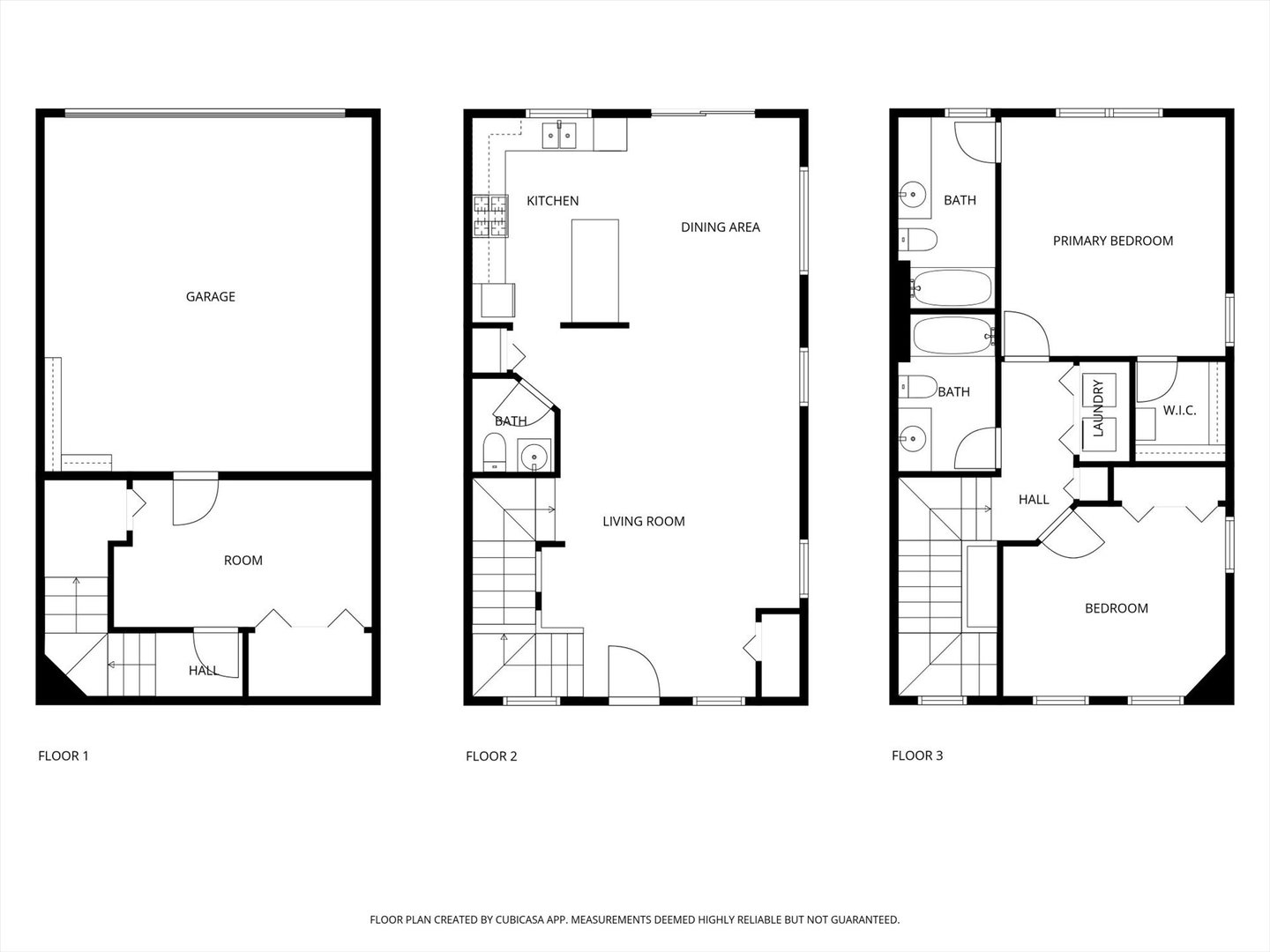
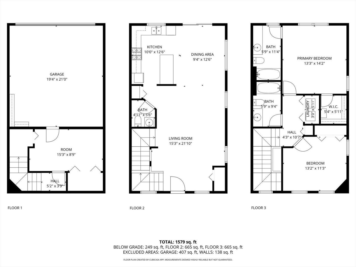
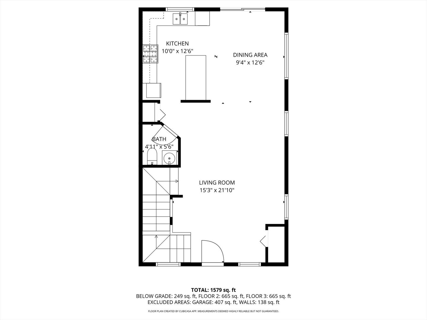
2beds
2.5bath
1,330sqft
–acres
Townhouse for Sale
Elgin, IL 60120
Listing by: Keller Williams Inspire
1 - 1 of 1 results

6655 Main St., Downers Grove, IL 60516
© 2025 Mainstreet REALTORS® All Rights Reserved.
Display of MLS Data is usually deemed reliable but is NOT guaranteed accurate by the MLS. Buyers are responsible for verifying the accuracy of all information and should investigate the data themselves or retain appropriate professionals.





