
- Buy
- Rent
- Commercial
- Find a REALTOR®

Lake Villa, IL 60046

































































































































































IL/Lake/Lake Villa/60046/Lake Villa, IL 60046Lake Villa, IL 60046
Lake Villa, IL 60046
House for Sale by Lisa Wolf, Keller Williams North Shore West.
- Overview
- Details
- Open Houses
- More
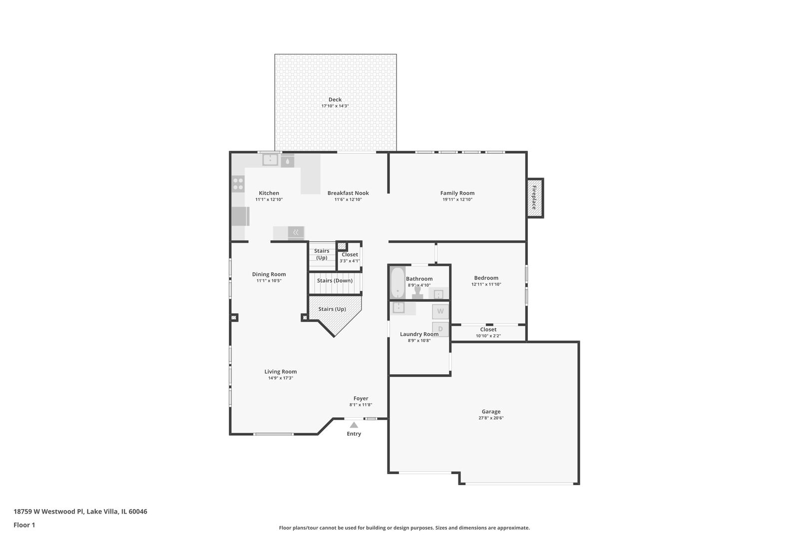
Welcome Home to this stunning home in highly sought-after The Shires, where style, space, and functionality come together seamlessly. From the moment you arrive, you are greeted by exceptional curb appeal, highlighted by a charming front porch-perfect for morning coffee or evening relaxation-and a spacious three-car garage. Step inside and be immediately impressed by the elegant dark hardwood floors, soaring volume ceilings, and an abundance of natural light that fills every corner of the home. The thoughtfully designed floor plan offers both comfort and versatility. The formal living and dining rooms provide the perfect setting for hosting gatherings, holiday dinners, or entertaining guests in style. At the heart of the home lies a truly stunning kitchen that is sure to impress. Featuring crisp white shaker cabinetry, sleek white quartz countertops, stainless steel appliances, a stylish backsplash, and a convenient breakfast bar, this space is as functional as it is beautiful. The expansive eating area overlooks the backyard, creating the perfect backdrop for everyday meals or casual entertaining. The inviting family room is designed for relaxation, complete with a cozy fireplace and custom built-ins on either side, all enhanced by large windows that flood the space with natural light. A main-level bedroom and full bathroom offer incredible convenience-ideal for guests, in-laws, or a private home office setup. The well-appointed laundry and mudroom add to the home's practicality, keeping daily life organized and efficient. Upstairs, retreat to the luxurious Primary Suite, featuring a spacious bedroom, an impressive walk-in closet, and a spa-like en suite bathroom with a double sink vanity, soaking tub, and separate shower. Two additional generously sized bedrooms, a full bathroom, and a versatile loft space provide ample room for family, work, or play. The walkout basement is a true extension of the home, offering a bright and open layout that's perfect for entertaining or unwinding. Enjoy a large recreation area, dedicated media space, wet bar, exercise room, and an additional full bathroom-this lower level truly has it all. Step outside and fall in love with the backyard-truly a dream setting. A spacious deck is perfect for dining al fresco or relaxing in the sun, while the beautiful lower paver patio offers an additional space to gather, unwind, and entertain. All of this overlooks a fully fenced backyard, providing both privacy and plenty of room to enjoy. This exceptional home combines elegance, comfort, and modern living in one of the area's most desirable communities. This home truly has it all!